ул. Кутузова, 1стр.100

+7 (913) 030 44 45

  1. Главная
  2. >
  3. Проекты
  4. >
  5. Сосны

Проект:

"Сосны"

Информация о проекте:

Размер:

8 х 12

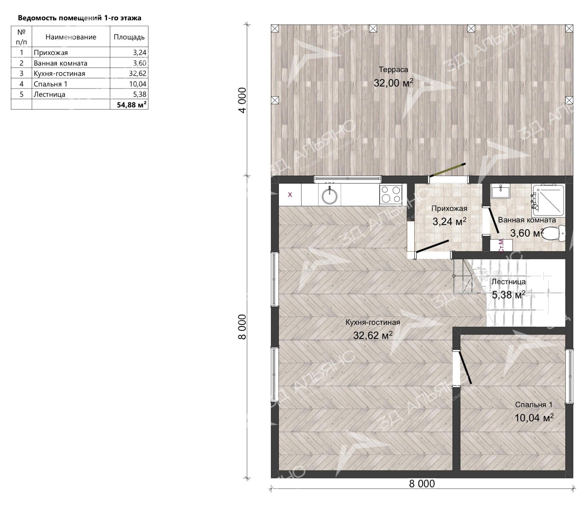
Площадь:

104,15 м2

Тип дома:

Брус

Этаж:

2 этажа

Спален:

3

Санузлов:

2

Цена строительства:

от  63 140 ₽/м2

Описание проекта

Что входит в стоимость

Проект «Сосны» — вдохновляющий классический дом избруса, аккуратно окрашенного в тёплый древесный тон! Компактные размеры 8×12 м и продуманная площадь 104,15 м² делают его по-настоящему уютным. Два этажа с мансардой образуют гармоничный силуэт: двускатная крыша из тёмной металлочерепицы, элегантное крыльцо и просторная терраса под широким навесом создают атмосферу загородного спокойствия. Фасад подчеркнут графитовыми оконными рамами и ограждениями, а каменный цоколь добавляет основательности. Вечером дом оживает мягкой архитектурной подсветкой — как на открытке. Главная изюминка — большой балкон на мансардном этаже с остеклением в кровле: панорамные стеклянные вставки во фронтоне и крупные мансардные окна наполняют пространство светом и открывают вид на сад и сосны. Планировка включает комнат, из них 3 уютные спальни — идеальное решение для семьи. Просторная зона дневного отдыха плавно перетекает на террасу, где так приятно пить утренний кофе или устраивать вечерние посиделки. Уют, красота и надёжность бруса ощущаются в каждой детали, а классика фасада ненавязчиво дополнена современными акцентами. Это дом, который хочется обнять взглядом и в котором хочется жить — каждый день, в любое время года!

• Фундамент — ж/б буронабивные сваи d 250мм с заглублением не менее 3м, окладной венец брус лиственница 180*180;
• Септик 5 м³ + трасса водоотведения внешняя и внутренняя до потребителей;
• Сруб дома – брус сосна 180*180;
• Перекрытие — брус сосна 180*100;
• Лаги пола — брус лиственница 180*100;
• Фасад — покрытие дома колерованным антисептирующим составом
• Утепление перекрытий
• Кровля — металлочерепица 0,45 мм (цвет по желанию Клиента)
• Карнизы – софит ПВХ сперфорацией, Docke (цвет по желанию Клиента);
• Окна, дверь – ПВХ, на террасу, с многозапорным замком, отливы металлические, наличники деревянные;
• Водосточная система Docke Premium ПВХ (цвет по желанию Клиента);
• Входная дверь металлическая, с двойным терморазрывом, наружные наличники деревянные;
• Инженерные сети: электроснабжение, водоснабжение, водоотведение, вентиляция;
• Отопление — система ТП с электрическим котлом ЭВАН/ZOTA (на выбор) в полусухой стяжке 70 мм;
• Потолки — натяжные (сатин/матовый) с освещением
• Напольное покрытие - кварцвиниловый ламинат;
• Окна — ПВХ откосы и подоконники;
• Межкомнатные двери + фурнитура (с установкой);
• Установка накладных розеток, выключателей;

Формы оплаты

Поэтапная оплата

1 этап: фундамент;
2 этап: коробка;
3 этап: фасад;
4 этап: отделка

Ипотека, эскроу-счет

Банки с которыми мы работаем: СБЕР, Дом РФ, ВТБ, Альфа-банк и др.

Материнский капитал

С возможностью использования для первоначального взноса или погашения ипотеки

Наличными и безналичный расчет

Работаем с юридическими лицами

ПОХОЖИЕ ПРОЕКТЫ

Дом с готовой внешней и внутренней отделкой. А также с коммуникациями “Под ключ”.

2 этажа

Размер:

8 х 12

Площадь:

104,15 м2

Тип дома:

Брус

Цена строительства от:

от  63 140 ₽/м2

1 этаж

Размер:

8,5 х 14,5

Площадь:

61,39 м2

Тип дома:

Брус

Цена строительства от:

от  63 140 ₽/м2

1 этаж + мансарда

Размер:

8 х 14

Площадь:

123 м2

Тип дома:

Брус

Цена строительства от:

от  63 140 ₽/м2

БЕСПЛАТНО ПРОКОНСУЛЬТИРУЕМ ПО ВСЕМ ВОПРОСАМ

Оставьте заявку нашим специалистам и мы свяжемся с вами в ближайшее время

Контакты

Доверьте нам строительство, и мы сделаем процесс понятным, а результат безупречным.

Руководитель отдела продаж

Отдел продаж

Имя *
Номер телефона *
Выбрать
Тип постройки
Задайте свой вопрос

© 2010-2026. ООО «3Д АЛЬЯНС», ИНН 270033586220, официальный сайт

Сайт носит исключительно информационный характер и не является публичной офертой, определяемой положениями ГК РФ. Для получения подробной информации о наличии, видах, характеристиках и стоимости домов обращайтесь в офис продаж.

© 2010-2026. ООО «3Д АЛЬЯНС», ИНН 270033586220, официальный сайт

Сайт носит исключительно информационный характер и не является публичной офертой, определяемой положениями ГК РФ. Для получения подробной информации о наличии, видах, характеристиках и стоимости домов обращайтесь в офис продаж.