ул. Кутузова, 1стр.100

+7 (913) 030 44 45

  1. Главная
  2. >
  3. Проекты
  4. >
  5. Селект

Проект:

"Селект"

Информация о проекте:

Размер:

10,5 × 8

Площадь:

115,78 м2

Тип дома:

Газобетон

Этаж:

2 этажа

Спален:

5

Санузлов:

2

Цена строительства:

от  70 180 ₽/м2

Описание проекта

Что входит в стоимость

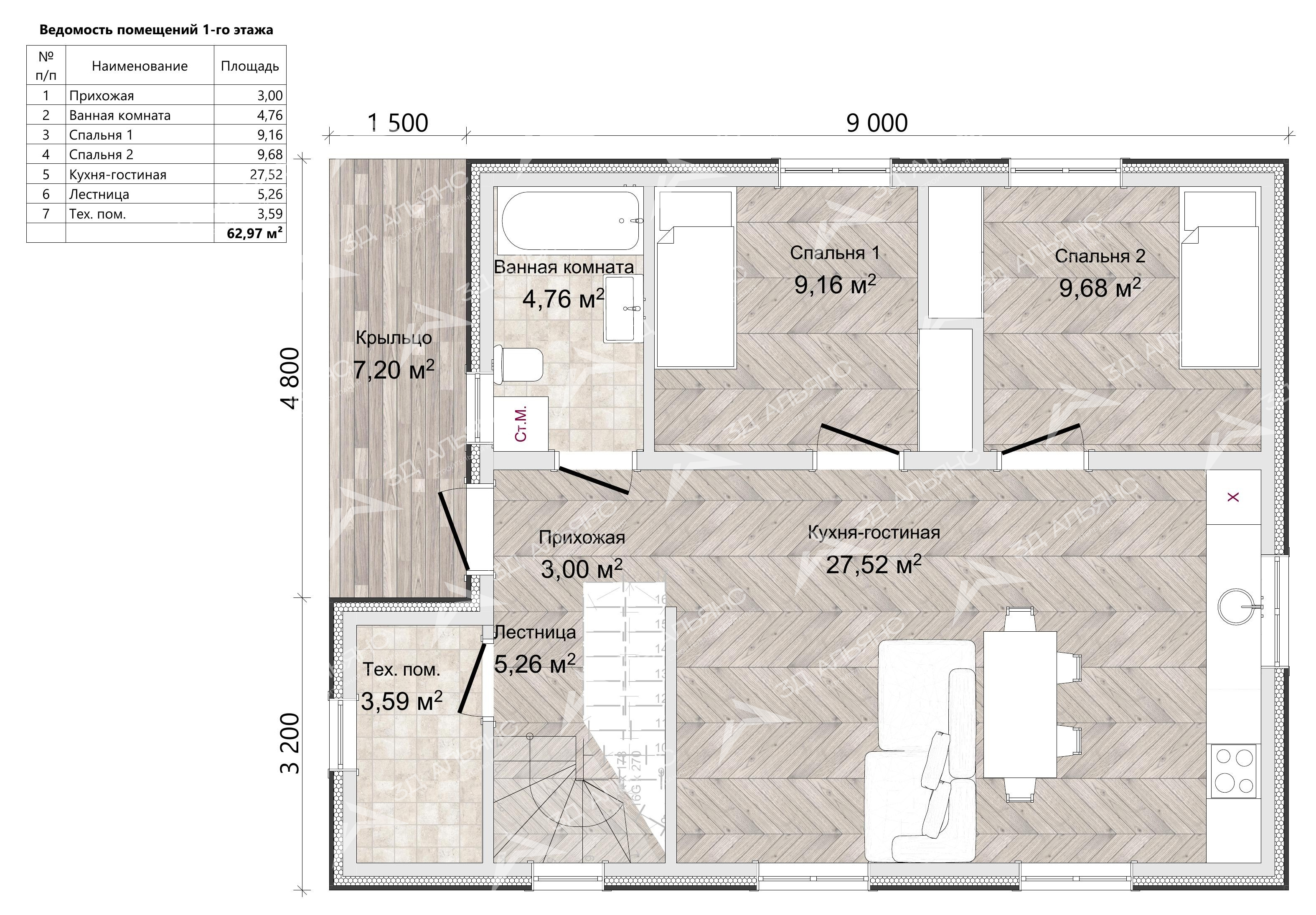
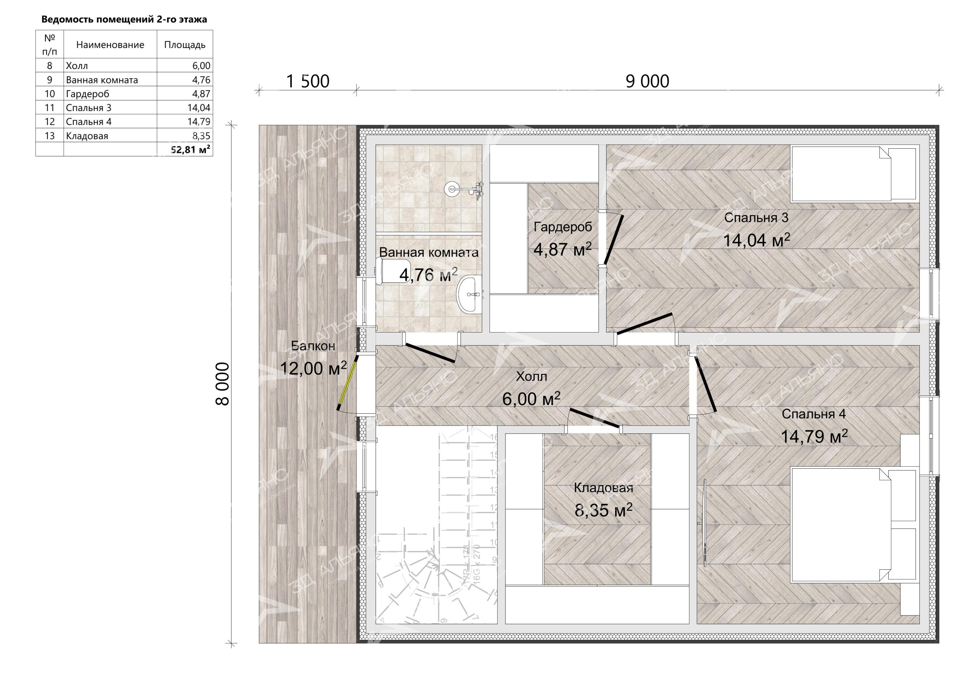
Проект «Селект» — классический дом из газобетона с полноценным мансардным этажом, общими габаритами 10,5×8м, созданный для тех, кто выбирает тепло, тишину и красоту! Кирпичная фактура фасада из термопанелей сочетается с белыми рамами окон, серым каменным цоколем и темной черепичной кровлей. Глубокие свесы с деревянной подшивкой в белом цвете подчеркивают архитектурный ритм. Уютное крыльцо встречает гостей, защищая от непогоды. На втором уровне расположена эффектная балкон-галерея под общей кровлей — идеальное место любоваться вечерними красотами ландшафтного дизайна участка и окресностей! В 115,78 м² на двух этажах продумано все для семейной гармонии:шесть комнат — светлая кухня столовая с гостиной и две спальные комнаты на первом уровне; две тихие спальни и большая гардеробная на мансардном этаже. Продуманная геометрия делает планировку компактной и удобной, а газобетон надежно держит тепло зимой и прохладу летом. Пропорциональные окна наполняют дом мягким светом, создавая атмосферу уюта и спокойствия.
Проект «Селект» вдохновляет на домашние традиции и тихие вечера на балконе. Это тот самый дом, где каждый метр работает на комфорт и красоту жизни!

• Фундамент — ЖБ плита 300мм.Ввод в дом трасс:водоотведения и водоснабжения с греющими кабелями, электроснабжение;
• Септик 5 м³ + трасса водоотведения внешняя и внутренняя до потребителей;
• Фасад — мокрая штукатурка «короед» (цвет по желанию Клиента);
• Кровля — металлочерепица 0,45 мм (цвет по желанию Клиента);
• Карнизы – софит ПВХ сперфорацией, Docke (цвет по желанию Клиента);
• Окна, дверь – ПВХ, на террасу, с многозапорным замком, отливы металл;
• Водосточная система Docke Premium ПВХ (цвет по желанию Клиента);
• Входная дверь металлическая, с двойным терморазрывом;
• Отопление — система ТП с электрическим котлом ЭВАН/ZOTA (на выбор) в полусухой стяжке 70 мм;

Формы оплаты

Поэтапная оплата

1 этап: фундамент;
2 этап: коробка;
3 этап: фасад;
4 этап: отделка

Ипотека, эскроу-счет

Банки с которыми мы работаем: СБЕР, Дом РФ, ВТБ, Альфа-банк и др.

Материнский капитал

С возможностью использования для первоначального взноса или погашения ипотеки

Наличными и безналичный расчет

Работаем с юридическими лицами

ПОХОЖИЕ ПРОЕКТЫ

Дом с готовой внешней и внутренней отделкой. А также с коммуникациями “Под ключ”.

1 этаж + мансарда

Размер:

8 х 11,5

Площадь:

110,22 м2

Тип дома:

Газобетон

Цена строительства от:

от  70 180 ₽/м2

1 этаж

Размер:

14,7 х 16,25

Площадь:

136,59 м2

Тип дома:

Газобетон

Цена строительства от:

от  70 180 ₽/м2

2 этажа

Размер:

10,5 × 8

Площадь:

115,78 м2

Тип дома:

Газобетон

Цена строительства от:

от  70 180 ₽/м2

БЕСПЛАТНО ПРОКОНСУЛЬТИРУЕМ ПО ВСЕМ ВОПРОСАМ

Оставьте заявку нашим специалистам и мы свяжемся с вами в ближайшее время

Контакты

Доверьте нам строительство, и мы сделаем процесс понятным, а результат безупречным.

Руководитель отдела продаж

Отдел продаж

Имя *
Номер телефона *
Выбрать
Тип постройки
Задайте свой вопрос

© 2010-2026. ООО «3Д АЛЬЯНС», ИНН 270033586220, официальный сайт

Сайт носит исключительно информационный характер и не является публичной офертой, определяемой положениями ГК РФ. Для получения подробной информации о наличии, видах, характеристиках и стоимости домов обращайтесь в офис продаж.

© 2010-2026. ООО «3Д АЛЬЯНС», ИНН 270033586220, официальный сайт

Сайт носит исключительно информационный характер и не является публичной офертой, определяемой положениями ГК РФ. Для получения подробной информации о наличии, видах, характеристиках и стоимости домов обращайтесь в офис продаж.