ул. Кутузова, 1стр.100

+7 (913) 030 44 45

  1. Главная
  2. >
  3. Проекты
  4. >
  5. Шермонт

Проект:

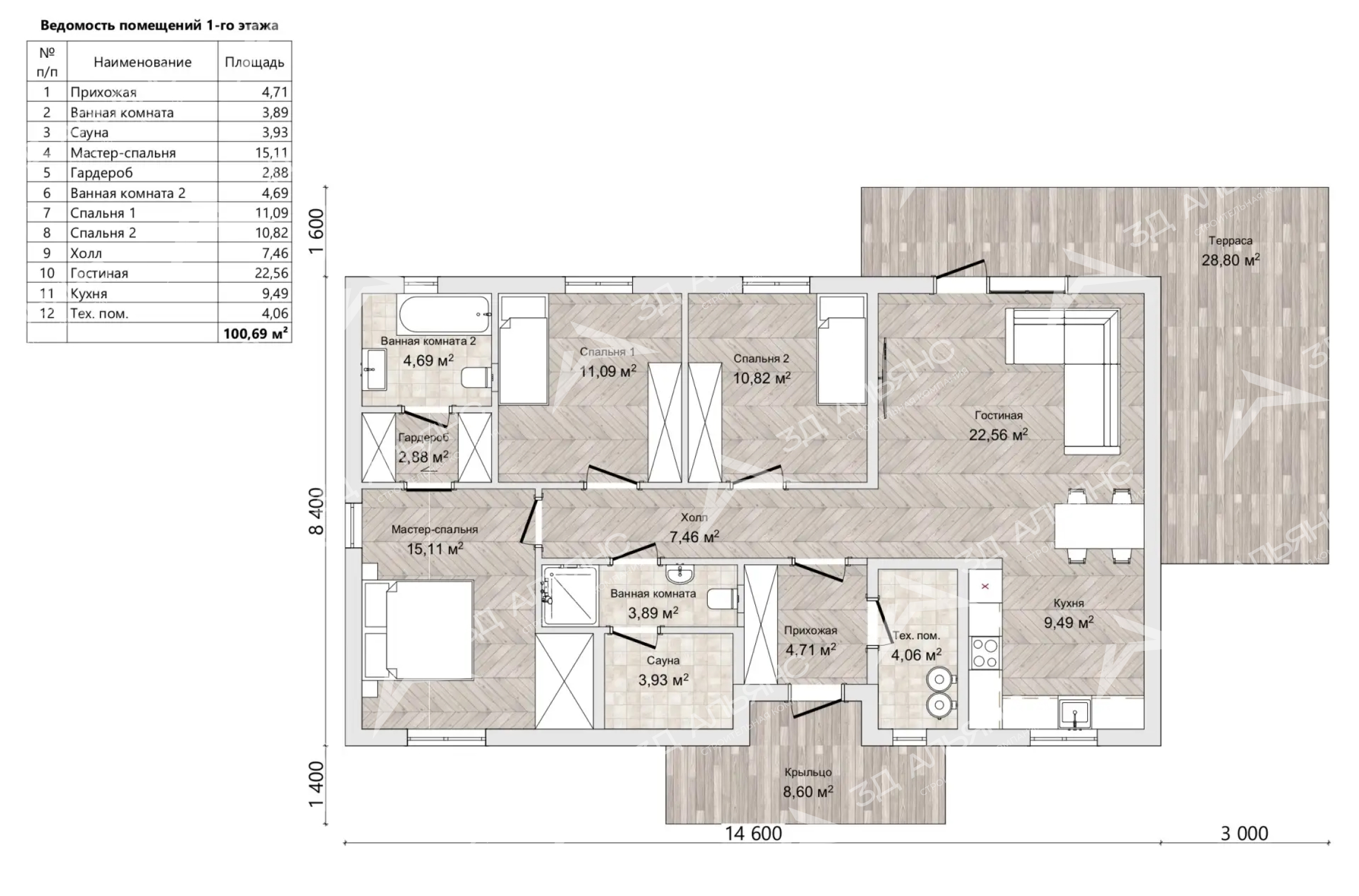
"Шермонт"

Информация о проекте:

Размер:

8,4 × 14,6

Площадь:

100,69 м2

Тип дома:

Теплоблок

Этаж:

1 этаж

Спален:

3

Санузлов:

2

Цена строительства:

от  65 870 ₽/м2

Описание проекта

Что входит в стоимость

Проект «Шермонт» — эстетичный дом из облицовочного теплоблока, где каждый метр жилой площади служит во благо комфорта. Размеры: 8,4*14,6. Один этаж — 100,69 м² ясной логики: 3 спальни, одна из которых мастер-спальня со своей гардеробной и ванной комнатой, удобная кухня-гостиная; простые связи, удобные решения ритма пространства. Классический силуэт дома в серых тонах под вальмовой крышей — ничего лишнего,вычурного. Цоколь отделан природным камнем, углы дома и карниз с водосточной системой в белом цвете – все лаконично, респектабельно, надежно. Выход на открытую террасу приглашает на утреннее чаепитие. Панорамные окна в гостиной наполняют естественным светом обеденную зону: ландшафт растворяется в интерьере, свет проникает мягко и нежно. Дом из теплоблока — теплый щит от морозов и зноя; он оберегает покой, как надежный риф хранит берег. Здесь хочется жить и радоваться жизни: вести беседы под шорох листьев в саду слушать дождь по карнизам, встречать закат как праздник.
Проект «Шермонт»- полнота комфорта для большой семьи. Дом, где стиль отражает чувства, а красота равна простоте.

• Фундамент — ЖБ плита 300мм. Ввод в дом трасс:водоотведения и водоснабжения с греющими кабелями, электроснабжение;
• Септик 5 м³ + трасса водоотведения внешняя и внутренняя до потребителей;
• Фасад — расшивка швов, окраска (цвет по желанию Клиента);
• Кровля — металлочерепица 0,45 мм (цвет по желанию Клиента);
• Карнизы – софит ПВХ сперфорацией, Docke (цвет по желанию Клиента);
• Окна, дверь – ПВХ, на террасу, с многозапорным замком, отливы металл;
• Водосточная система Docke Premium ПВХ (цвет по желанию Клиента);
• Входная дверь металлическая, с двойным терморазрывом;
• Отопление — система ТП с электрическим котлом ЭВАН/ZOTA (на выбор) в полусухой стяжке 70 мм;

Формы оплаты

Поэтапная оплата

1 этап: фундамент;
2 этап: коробка;
3 этап: фасад;
4 этап: отделка

Ипотека, эскроу-счет

Банки с которыми мы работаем: СБЕР, Дом РФ, ВТБ, Альфа-банк и др.

Материнский капитал

С возможностью использования для первоначального взноса или погашения ипотеки

Наличными и безналичный расчет

Работаем с юридическими лицами

ПОХОЖИЕ ПРОЕКТЫ

Дом с готовой внешней и внутренней отделкой. А также с коммуникациями “Под ключ”.

1 этаж

Размер:

11,3 х 14,2

Площадь:

74,23 м2

Тип дома:

Теплоблок

Цена строительства от:

от  65 870 ₽/м2

1 этаж

Размер:

9,2 х 9,8

Площадь:

78,17 м2

Тип дома:

Теплоблок

Цена строительства от:

от  65 870 ₽/м2

1 этаж

Размер:

9,5 х 12

Площадь:

68,96 м2

Тип дома:

Теплоблок

Цена строительства от:

от  65 870 ₽/м2

БЕСПЛАТНО ПРОКОНСУЛЬТИРУЕМ ПО ВСЕМ ВОПРОСАМ

Оставьте заявку нашим специалистам и мы свяжемся с вами в ближайшее время

Контакты

Доверьте нам строительство, и мы сделаем процесс понятным, а результат безупречным.

Руководитель отдела продаж

Отдел продаж

Имя *
Номер телефона *
Выбрать
Тип постройки
Задайте свой вопрос

© 2010-2026. ООО «3Д АЛЬЯНС», ИНН 270033586220, официальный сайт

Сайт носит исключительно информационный характер и не является публичной офертой, определяемой положениями ГК РФ. Для получения подробной информации о наличии, видах, характеристиках и стоимости домов обращайтесь в офис продаж.

© 2010-2026. ООО «3Д АЛЬЯНС», ИНН 270033586220, официальный сайт

Сайт носит исключительно информационный характер и не является публичной офертой, определяемой положениями ГК РФ. Для получения подробной информации о наличии, видах, характеристиках и стоимости домов обращайтесь в офис продаж.