ул. Кутузова, 1стр.100

+7 (913) 030 44 45

  1. Главная
  2. >
  3. Проекты
  4. >
  5. Мольен

Проект:

"Мольен"

Информация о проекте:

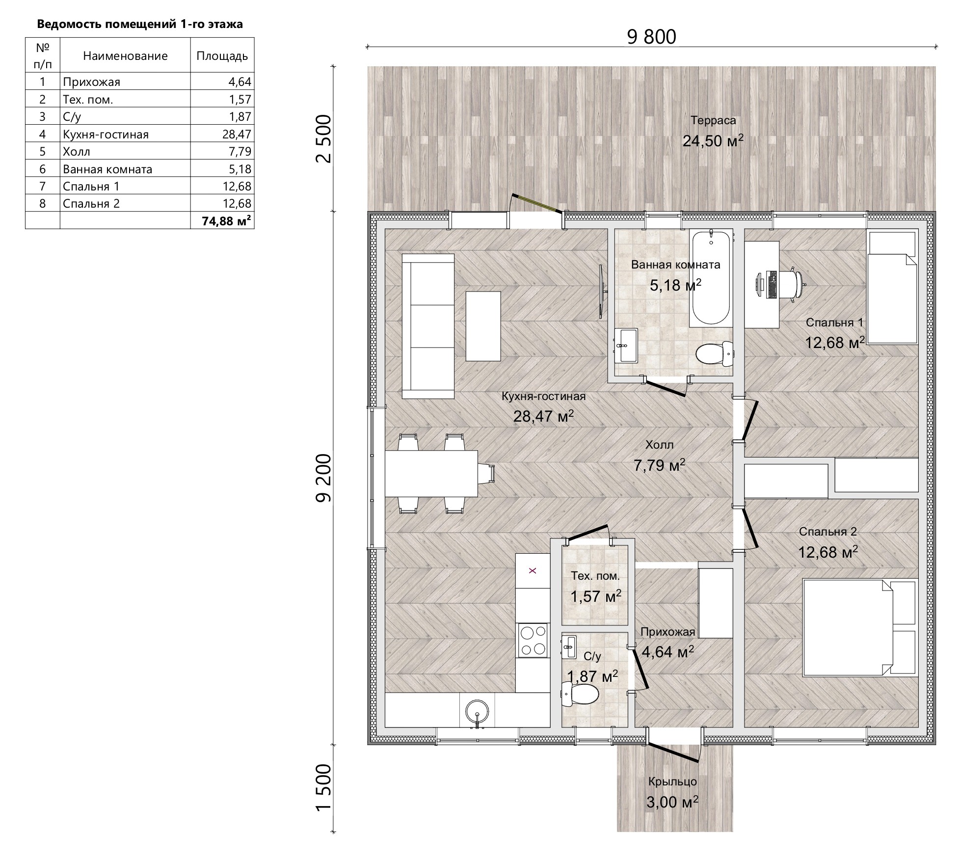
Размер:

9,2 х 9,8

Площадь:

78,17 м2

Тип дома:

Теплоблок

Этаж:

1 этаж

Спален:

2

Санузлов:

1

Цена строительства:

от  65 870 ₽/м2

Описание проекта

Что входит в стоимость

Проект Мольен — дом из облицовочного теплоблока, где тишина звучит бархатом и воздух пахнет соснами. Классический силуэт под вальмовой крышей с темной черепицей укрывает светлые стены, бережно окрашенные — чистая линия, уверенный штрих. Опоры, отделанные природным камнем, держат широкий карниз, а деревянная терраса обнимает крыльцо, приглашая встретить утро босиком. Панорамные окна — как кадры из фильма о счастливой жизни: сад растворяется в интерьере, свет льется щедро и мягко. Дом из теплоблока — теплый щит от стужи и зноя; он хранит покой, как надежный риф хранит берег. На одном этаже — 78,17 м² ясной логики:3 комнаты, среди них 2 уютные спальни и удобная кухня-гостиная; простые ходы, удобные связи, плавный ритм пространства. Размеры дома 9,2×9,8 - точность и мера, где каждый метр работает на комфорт: столовая у окна, гостиная с выходом на террасу, легкий сквозняк лета вместо часов. Здесь хочется жить медленно и полно: заваривать чай под шорох садовых фонарей, слушать дождь по карнизам, встречать закат как праздник.
Проект «Мольен» звучит тихой поэзией повседневности — дом, где форма служит чувству, а красота равна простоте.

• Фундамент — ЖБ плита 300мм. Ввод в дом трасс:водоотведения и водоснабжения с греющими кабелями, электроснабжение;
• Септик 5 м³ + трасса водоотведения внешняя и внутренняя до потребителей;
• Фасад — расшивка швов, окраска (цвет по желанию Клиента);
• Кровля — металлочерепица 0,45 мм (цвет по желанию Клиента);
• Карнизы – софит ПВХ сперфорацией, Docke (цвет по желанию Клиента);
• Окна, дверь – ПВХ, на террасу, с многозапорным замком, отливы металл;
• Водосточная система Docke Premium ПВХ (цвет по желанию Клиента);
• Входная дверь металлическая, с двойным терморазрывом;
• Отопление — система ТП с электрическим котлом ЭВАН/ZOTA (на выбор) в полусухой стяжке 70 мм;

Формы оплаты

Поэтапная оплата

1 этап: фундамент;
2 этап: коробка;
3 этап: фасад;
4 этап: отделка

Ипотека, эскроу-счет

Банки с которыми мы работаем: СБЕР, Дом РФ, ВТБ, Альфа-банк и др.

Материнский капитал

С возможностью использования для первоначального взноса или погашения ипотеки

Наличными и безналичный расчет

Работаем с юридическими лицами

ПОХОЖИЕ ПРОЕКТЫ

Дом с готовой внешней и внутренней отделкой. А также с коммуникациями “Под ключ”.

1 этаж

Размер:

11,3 х 14,2

Площадь:

74,23 м2

Тип дома:

Теплоблок

Цена строительства от:

от  65 870 ₽/м2

1 этаж

Размер:

9,2 х 9,8

Площадь:

78,17 м2

Тип дома:

Теплоблок

Цена строительства от:

от  65 870 ₽/м2

1 этаж

Размер:

9,5 х 12

Площадь:

68,96 м2

Тип дома:

Теплоблок

Цена строительства от:

от  65 870 ₽/м2

БЕСПЛАТНО ПРОКОНСУЛЬТИРУЕМ ПО ВСЕМ ВОПРОСАМ

Оставьте заявку нашим специалистам и мы свяжемся с вами в ближайшее время

Контакты

Доверьте нам строительство, и мы сделаем процесс понятным, а результат безупречным.

Руководитель отдела продаж

Отдел продаж

Имя *
Номер телефона *
Выбрать
Тип постройки
Задайте свой вопрос

© 2010-2026. ООО «3Д АЛЬЯНС», ИНН 270033586220, официальный сайт

Сайт носит исключительно информационный характер и не является публичной офертой, определяемой положениями ГК РФ. Для получения подробной информации о наличии, видах, характеристиках и стоимости домов обращайтесь в офис продаж.

© 2010-2026. ООО «3Д АЛЬЯНС», ИНН 270033586220, официальный сайт

Сайт носит исключительно информационный характер и не является публичной офертой, определяемой положениями ГК РФ. Для получения подробной информации о наличии, видах, характеристиках и стоимости домов обращайтесь в офис продаж.