ул. Кутузова, 1стр.100

+7 (913) 030 44 45

  1. Главная
  2. >
  3. Проекты
  4. >
  5. Семейный К2

Проект:

"Семейный К2"

Информация о проекте:

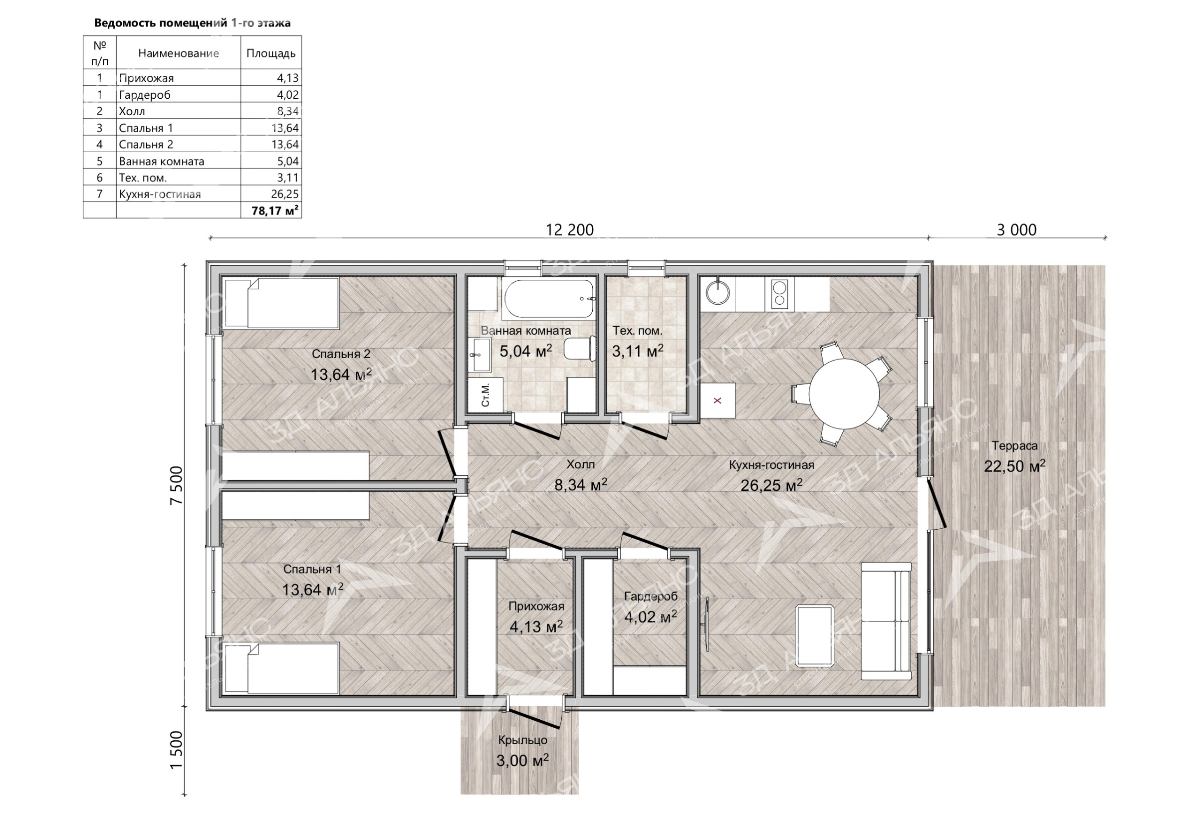
Размер:

8 х 14

Площадь:

78,17 м2

Тип дома:

Каркасный

Этаж:

1 этаж

Спален:

2

Санузлов:

1

Цена строительства:

от  75 700 ₽/м2

Описание проекта

Что входит в стоимость

Проект Семейный К2 — современный одноэтажный каркасный дом для тех, кто ценит свет, уют и простоту форм. При общих габаритах 8×14 и жилой площади 78,17 м² он удивляет продуманностью: четыре функциональные комнаты, из них две уютные спальни, и комфортная общая зона для семейных встреч. Фасады выполнены в аккуратном сайдинге с стильными каменными акцентами, что придаёт дому благородный, естественный вид. Лёгкая двускатная кровля, аккуратное крыльцо с высоким порталом и просторная терраса под навесом создают ощущение открытости и защищённости одновременно. Панорамные окна наполняют интерьер мягким дневным светом и визуально расширяют пространство — особенно приятно выходить из гостиной прямо на террасу для завтрака на свежем воздухе. Каркасная технология обеспечивает энергоэффективность и тёплую атмосферу круглый год, а один этаж — удобство для всех поколений. Дом гармонично вписывается в зелёный участок: мягкие линии дорожки к входу, ухоженные клумбы и естественная палитра материалов подчёркивают его современный характер.
Семейный К2 — это про красоту без излишеств и повседневный комфорт. Лёгкий, светлый и надёжный — он дружелюбно встречает у порога и щедро делится пространством для совместной жизни.

• Септик 5 м³ + трасса водоотведения внешняя и внутренняя до потребителей;
• Силовой каркас (несущие стены, межкомнатные перегородки, стропильная система, обрешетка — сухая, калиброванная доска 1-2 сорта;
• Утепление — URSATerra PN 34PRO200мм(150ммперехлестное основное + 50 мм контрутепление);
• Фасад комбинированный — имитация бруса лиственницы (сорт АБ) с окраской (цвет по желанию Клиента) + Система ТН-ФАСАД Лайт HAUBERK;
• Кровля — металлочерепица 0,45 мм (цвет по желанию Клиента)
• Карнизы – софит ПВХ с перфорацией, Docke (цвет по желанию Клиента);
• Окна – ПВХ, отливы металл;
• Водосточная система Docke Premium ПВХ (цвет по желанию Клиента);
• Входная дверь металлическая, с двойным терморазрывом, дверь ПВХ на террасу с многозапорным замком;
• Инженерные сети: электроснабжение, водоснабжение, водоотведение, вентиляция;
• Отопление — система ТП с электрическим котлом ЭВАН/ZOTA (на выбор) в полусухой стяжке 70 мм;
• Стены — OSB-39мм+ГКЛ12мм(вс/у–ГКЛВ),проклейка швов и шпатлевание «под обои»;
• Потолки — натяжные (сатин/матовый) с освещением;
• Напольное покрытие- кварцвиниловый ламинат;
• Окна — ПВХ откосы и подоконники;
• Межкомнатные двери + фурнитура (с установкой);
• Установка розеток, выключателей;
• Терраса/входная группа — до 20 м²

Формы оплаты

Поэтапная оплата

1 этап: фундамент;
2 этап: коробка;
3 этап: фасад;
4 этап: отделка

Ипотека, эскроу-счет

Банки с которыми мы работаем: СБЕР, Дом РФ, ВТБ, Альфа-банк и др.

Материнский капитал

С возможностью использования для первоначального взноса или погашения ипотеки

Наличными и безналичный расчет

Работаем с юридическими лицами

ПОХОЖИЕ ПРОЕКТЫ

Дом с готовой внешней и внутренней отделкой. А также с коммуникациями “Под ключ”.

1 этаж + мансарда

Размер:

12,5 х 12

Площадь:

103,5 м2

Тип дома:

Каркасный

Цена строительства от:

от  75 700 ₽/м2

1 этаж

Размер:

8 х 14

Площадь:

78,17 м2

Тип дома:

Каркасный

Цена строительства от:

от  75 700 ₽/м2

1 этаж

Размер:

9 х 13,5

Площадь:

70,22 м2

Тип дома:

Каркасный

Цена строительства от:

от  75 700 ₽/м2

БЕСПЛАТНО ПРОКОНСУЛЬТИРУЕМ ПО ВСЕМ ВОПРОСАМ

Оставьте заявку нашим специалистам и мы свяжемся с вами в ближайшее время

Контакты

Доверьте нам строительство, и мы сделаем процесс понятным, а результат безупречным.

Руководитель отдела продаж

Отдел продаж

Имя *
Номер телефона *
Выбрать
Тип постройки
Задайте свой вопрос

© 2010-2026. ООО «3Д АЛЬЯНС», ИНН 270033586220, официальный сайт

Сайт носит исключительно информационный характер и не является публичной офертой, определяемой положениями ГК РФ. Для получения подробной информации о наличии, видах, характеристиках и стоимости домов обращайтесь в офис продаж.

© 2010-2026. ООО «3Д АЛЬЯНС», ИНН 270033586220, официальный сайт

Сайт носит исключительно информационный характер и не является публичной офертой, определяемой положениями ГК РФ. Для получения подробной информации о наличии, видах, характеристиках и стоимости домов обращайтесь в офис продаж.