ул. Кутузова, 1стр.100

+7 (913) 030 44 45

  1. Главная
  2. >
  3. Проекты
  4. >
  5. Престиж К2

Проект:

"Престиж К2"

Информация о проекте:

Размер:

9 х 13,5

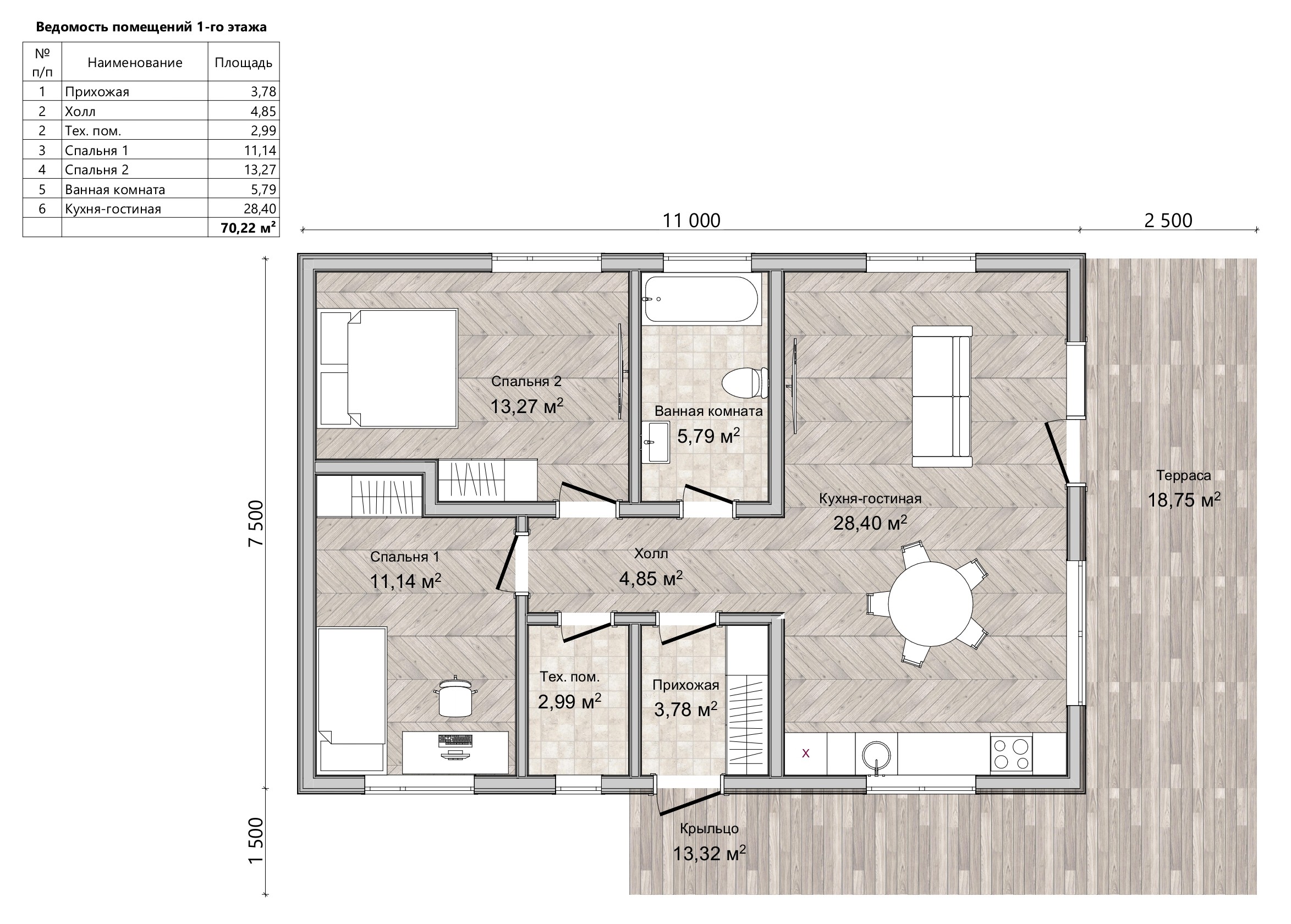
Площадь:

70,22 м2

Тип дома:

Каркасный

Этаж:

1 этаж

Спален:

2

Санузлов:

1

Цена строительства:

от  81 430 ₽/м2

Описание проекта

Что входит в стоимость

Проект «Престиж К2» — современный каркасный дом в стиле Contemporary, внешними размерами 9×13,5 м и общей жилой площадью 70,22 м², созданный для яркой и спокойной загородной жизни. Фасады отделаны имитацией бруса в благородном графитовом тоне с белыми акцентами, подчеркивающими чистую геометрию. Двускатная кровля и аккуратный каменный цоколь гармонируют с ландшафтом; вечернюю атмосферу уютно поддерживают фасадные бра и садовые светильники. Планировка на одном уровне включает 3 комнаты: просторную общую зону и 2 уединённые спальни. Сердце дома — гостиная со вторым светом: высокий объём и панорамные окна дарят много воздуха и солнца. Отсюда — прямой выход на широкую террасу, где приятно встречать рассвет и собирать семью за тёплыми беседами. Уютное крыльцо со ступенями приветствует гостей и защищает от непогоды. Архитектурный ритм формируют лаконичные перила и высокие стойки под фронтоном, зрительно увеличивающие пространство террасы. Дом мягко «врастает» в участок: гравийные дорожки, невысокий забор на каменных столбах, аккуратные кустарники и цветники образуют живописную рамку и поддерживают ощущение приватности.
Престиж К2 сочетает красоту, комфорт и рациональность каркасной технологии: тёплый, лёгкий в эксплуатации и по-настоящему жизнерадостный.

• Септик 5 м³ + трасса водоотведения внешняя и внутренняя до потребителей;
• Силовой каркас (несущие стены, межкомнатные перегородки, стропильная система, обрешетка — сухая, калиброванная доска 1-2 сорта);
• Утепление — URSA Terra PN 34 PRO 200 мм (150 мм перехлестное основное + 50 мм контрутепление);
• Фасад —имитация бруса лиственницы (сорт АБ) с окраской (цвет по желанию Клиента) + Система ТН-ФАСАД Лайт HAUBERK;
• Кровля — металлочерепица 0,45 мм (цвет по желанию Клиента)
• Карнизы– софит ПВХ с перфорацией, Docke (цвет по желанию Клиента);
• Окна- ПВХ EXPROFProfekta Plus 5-ти камерный профиль) и отливы металл;
• Водосточная система Docke Premium ПВХ (цвет по желанию Клиента);
• Входная дверь металлическая, с двойным терморазрывом «Центурион Т2» (либо аналог), дверь на террасу ORTEX-6 с многозапорным замком;
• Инженерные сети: электроснабжение, водоснабжение, водоотведение, вентиляция;
• Отопление — система ТП с электрическим котлом ЭВАН/ZOTA (на выбор) в полусухой стяжке 70 мм;
• Стены —OSB-39мм+ГКЛ12мм(вс/у–ГКЛВ), проклейка швов и шпатлевание «под обои»;
• Потолки — натяжные (сатин/матовый) с освещением;
• Напольное покрытие- кварцвиниловый ламинат;
• Окна — ПВХ откосы и подоконники;
• Межкомнатные двери + фурнитура (с установкой);
• Установка розеток, выключателей;
• Терраса/входная группа — до 20 м²

Формы оплаты

Поэтапная оплата

1 этап: фундамент;
2 этап: коробка;
3 этап: фасад;
4 этап: отделка

Ипотека, эскроу-счет

Банки с которыми мы работаем: СБЕР, Дом РФ, ВТБ, Альфа-банк и др.

Материнский капитал

С возможностью использования для первоначального взноса или погашения ипотеки

Наличными и безналичный расчет

Работаем с юридическими лицами

ПОХОЖИЕ ПРОЕКТЫ

Дом с готовой внешней и внутренней отделкой. А также с коммуникациями “Под ключ”.

1 этаж + мансарда

Размер:

12,5 х 12

Площадь:

103,5 м2

Тип дома:

Каркасный

Цена строительства от:

от  81 430 ₽/м2

1 этаж

Размер:

8 х 14

Площадь:

78,17 м2

Тип дома:

Каркасный

Цена строительства от:

от  81 430 ₽/м2

1 этаж

Размер:

9 х 13,5

Площадь:

70,22 м2

Тип дома:

Каркасный

Цена строительства от:

от  81 430 ₽/м2

БЕСПЛАТНО ПРОКОНСУЛЬТИРУЕМ ПО ВСЕМ ВОПРОСАМ

Оставьте заявку нашим специалистам и мы свяжемся с вами в ближайшее время

Контакты

Доверьте нам строительство, и мы сделаем процесс понятным, а результат безупречным.

Руководитель отдела продаж

Отдел продаж

Имя *
Номер телефона *
Выбрать
Тип постройки
Задайте свой вопрос

© 2010-2026. ООО «3Д АЛЬЯНС», ИНН 270033586220, официальный сайт

Сайт носит исключительно информационный характер и не является публичной офертой, определяемой положениями ГК РФ. Для получения подробной информации о наличии, видах, характеристиках и стоимости домов обращайтесь в офис продаж.

© 2010-2026. ООО «3Д АЛЬЯНС», ИНН 270033586220, официальный сайт

Сайт носит исключительно информационный характер и не является публичной офертой, определяемой положениями ГК РФ. Для получения подробной информации о наличии, видах, характеристиках и стоимости домов обращайтесь в офис продаж.