ул. Кутузова, 1стр.100

+7 (913) 030 44 45

  1. Главная
  2. >
  3. Проекты
  4. >
  5. Престиж К3

Проект:

"Престиж К3"

Информация о проекте:

Размер:

12,5 х 12

Площадь:

103,5 м2

Тип дома:

Каркасный

Этаж:

1 этаж + мансарда

Спален:

2

Санузлов:

2

Цена строительства:

от  75 700 ₽/м2

Описание проекта

Что входит в стоимость

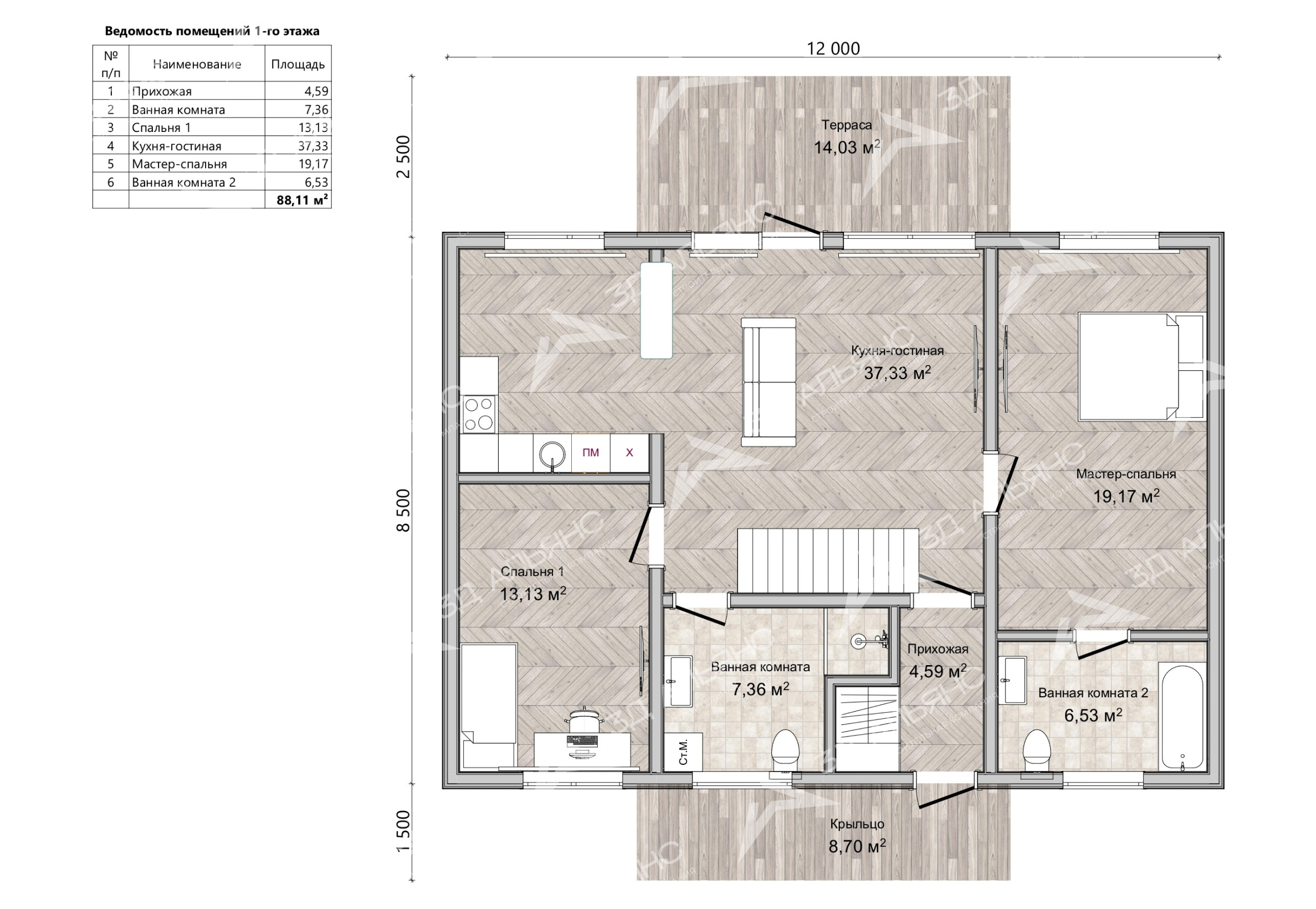
Проект Престиж К3 — современный каркасный дом размером 12,5×12 м и жилой площадью 103,5 м². Одноэтажный объем под высокой двускатной кровлей формирует гостиную со вторым светом и эффектными панорамными окнами. Комбинированный фасад — теплое дерево по верхнему ярусу и фактурная каменная облицовка по цоколю — создает благородный контраст; графитовые оконные рамы и широкие свесы кровли подчеркивают четкую архитектурную линию. Центральное крыльцо логично перетекает в террасу с деревянным настилом, а подсветка карнизов и бра на фасаде задают уютный вечерний сценарий. Планировка рассчитана на комфорт семьи: пять помещений, в том числе две изолированные спальни, одна из которых мастер-спальня со своим гардеробом и ванной комнатой. Общая зона объединяет кухню-столовую и гостиную, раскрытую на сад через раздвижные порталы; простор и естественное освещение поддерживает второй свет. Большая и удобная антресоль со скрытыми встроенными шкафами, освобождает основные комнаты от хранения вещей и аккуратно зонирует высоту. Каркасная технология обеспечивает энергоэффективный контур, точную геометрию и чистую отделку узлов. Большие свесы защищают остекление от осадков и перегрева, водосточная система интегрирована ненавязчиво. Комбинированный фасад долговечен и прекрасно вписывается в природное окружение.
Проект Престиж К3 — компактный,представительный дом для круглогодичной жизни, где эстетика, функциональность и ощущение простора работают на ежедневный комфорт.

• Септик 5 м³ + трасса водоотведения внешняя и внутренняя до потребителей;
• Силовой каркас (несущие стены, межкомнатные перегородки, стропильная система, обрешетка — сухая, калиброванная доска 1-2 сорта;
• Утепление — URSATerra PN 34PRO200мм(150ммперехлестное основное + 50 мм контрутепление);
• Фасад комбинированный — имитация бруса лиственницы (сорт АБ) с окраской (цвет по желанию Клиента) + Система ТН-ФАСАД Лайт HAUBERK;
• Кровля — металлочерепица 0,45 мм (цвет по желанию Клиента)
• Карнизы – софит ПВХ с перфорацией, Docke (цвет по желанию Клиента);
• Окна – ПВХ, отливы металл;
• Водосточная система Docke Premium ПВХ (цвет по желанию Клиента);
• Входная дверь металлическая, с двойным терморазрывом, дверь ПВХ на террасу с многозапорным замком;
• Инженерные сети: электроснабжение, водоснабжение, водоотведение, вентиляция;
• Отопление — система ТП с электрическим котлом ЭВАН/ZOTA (на выбор) в полусухой стяжке 70 мм;
• Стены — OSB-39мм+ГКЛ12мм(вс/у–ГКЛВ),проклейка швов и шпатлевание «под обои»;
• Потолки — натяжные (сатин/матовый) с освещением;
• Напольное покрытие- кварцвиниловый ламинат;
• Окна — ПВХ откосы и подоконники;
• Межкомнатные двери + фурнитура (с установкой);
• Установка розеток, выключателей;
• Терраса/входная группа — до 20 м²

Формы оплаты

Поэтапная оплата

1 этап: фундамент;
2 этап: коробка;
3 этап: фасад;
4 этап: отделка

Ипотека, эскроу-счет

Банки с которыми мы работаем: СБЕР, Дом РФ, ВТБ, Альфа-банк и др.

Материнский капитал

С возможностью использования для первоначального взноса или погашения ипотеки

Наличными и безналичный расчет

Работаем с юридическими лицами

ПОХОЖИЕ ПРОЕКТЫ

Дом с готовой внешней и внутренней отделкой. А также с коммуникациями “Под ключ”.

1 этаж + мансарда

Размер:

12,5 х 12

Площадь:

103,5 м2

Тип дома:

Каркасный

Цена строительства от:

от  75 700 ₽/м2

1 этаж

Размер:

8 х 14

Площадь:

78,17 м2

Тип дома:

Каркасный

Цена строительства от:

от  75 700 ₽/м2

1 этаж

Размер:

9 х 13,5

Площадь:

70,22 м2

Тип дома:

Каркасный

Цена строительства от:

от  75 700 ₽/м2

БЕСПЛАТНО ПРОКОНСУЛЬТИРУЕМ ПО ВСЕМ ВОПРОСАМ

Оставьте заявку нашим специалистам и мы свяжемся с вами в ближайшее время

Контакты

Доверьте нам строительство, и мы сделаем процесс понятным, а результат безупречным.

Руководитель отдела продаж

Отдел продаж

Имя *
Номер телефона *
Выбрать
Тип постройки
Задайте свой вопрос

© 2010-2026. ООО «3Д АЛЬЯНС», ИНН 270033586220, официальный сайт

Сайт носит исключительно информационный характер и не является публичной офертой, определяемой положениями ГК РФ. Для получения подробной информации о наличии, видах, характеристиках и стоимости домов обращайтесь в офис продаж.

© 2010-2026. ООО «3Д АЛЬЯНС», ИНН 270033586220, официальный сайт

Сайт носит исключительно информационный характер и не является публичной офертой, определяемой положениями ГК РФ. Для получения подробной информации о наличии, видах, характеристиках и стоимости домов обращайтесь в офис продаж.