ул. Кутузова, 1стр.100

+7 (913) 030 44 45

  1. Главная
  2. >
  3. Проекты
  4. >
  5. Дом Романовых

Проект:

"Дом Романовых"

Информация о проекте:

Размер:

10,5 х 12

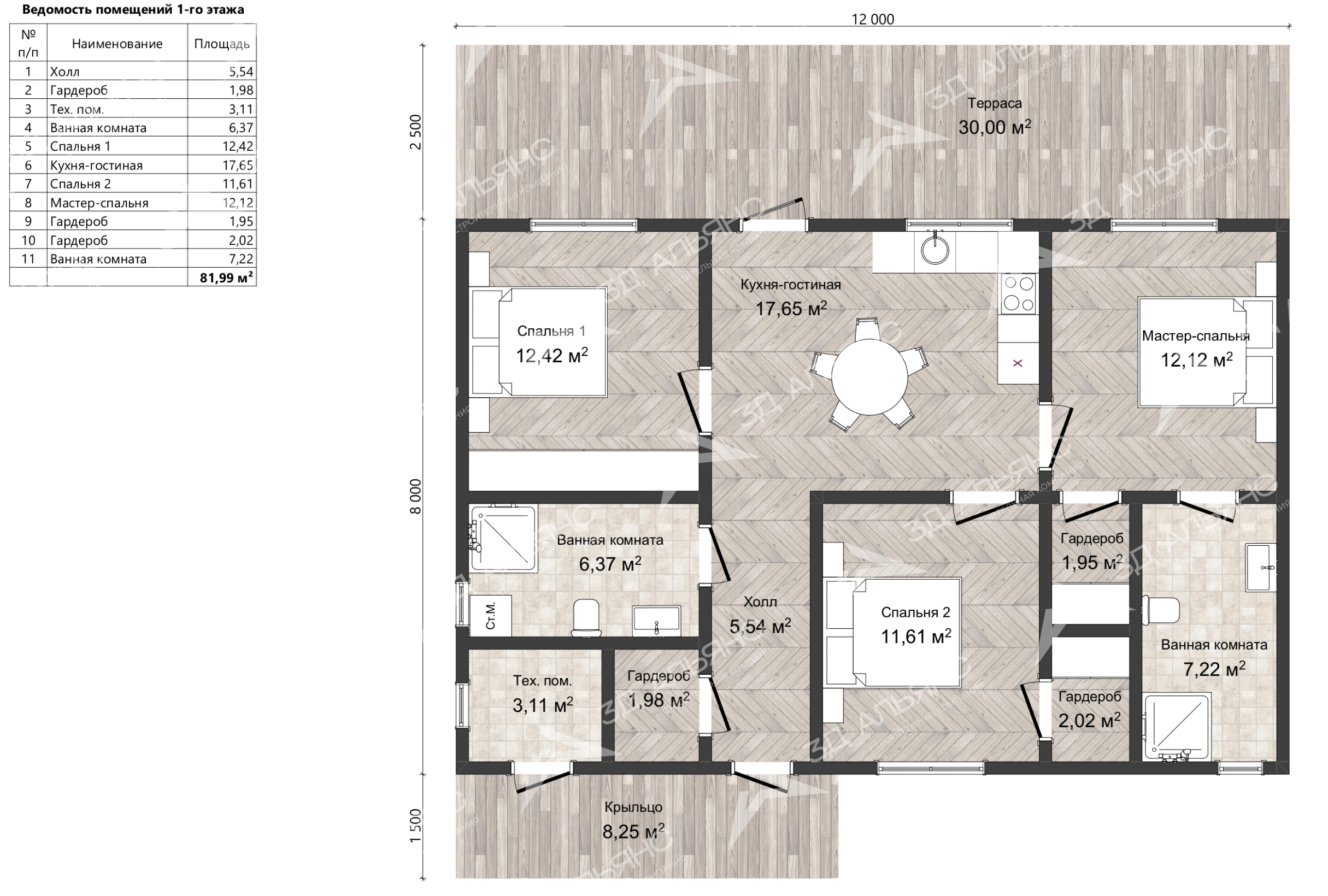
Площадь:

100,4 м2

Тип дома:

Кирпич

Этаж:

1 этаж + мансарда

Спален:

3

Санузлов:

2

Цена строительства:

от  72 430 ₽/м2

Описание проекта

Что входит в стоимость

Проект Дом Романовых — современный одноэтажный дом из кирпича с жилой площадью 100,4 м² и общими габаритами 10,5×12 м. Архитектура подчеркнута мощным двускатным кровельным контуром и широкими свесами; фронтонное остекление формирует дополнительное естественное освещение в доме и на антресоли. Наружная отделка — мокрый фасад по теплоизоляции, выдержанный в светлой гамме; акцентные участки выполнены декоративным камнем и кирпичной фактурой, что повышает износостойкость и придаёт фасадам респектабельность. Функциональная планировка включает пять комнат: три уединённые спальни и просторную зону кухни‑гостиной с прямым выходом на большую террасу. Высота конька образует воздушную гостиную; антресоль целесообразно использовать как кабинет или зону отдыха с панорамным видом на сад. Предусмотрены крыльцо под общим свесом кровли, удобные вспомогательные помещения и рациональные проходы. Большие окна с энергоэффективными стеклопакетами обеспечивают равномерную инсоляцию и визуальное раскрытие участка. Конструктив выполнен из прочного кирпича; кровля — долговечная графитовая металлочерепица с полной водосточной системой.Отделочные стойки и угловые элементы из камня визуально усиливают каркас террасы и защищают цоколь.
Современный стиль подчеркивают строгие линии тёмных переплётов и лаконичные пропорции. Дом ориентирован на комфорт семьи: одноэтажная эргономика, тихие спальни иуютная терраса для вечерних встреч.

• Фундамент — ЖБ плита 300мм.Ввод в дом трасс:водоотведения и водоснабжения с греющими кабелями, электроснабжение;
• Септик 5 м³ + трасса водоотведения внешняя и внутренняя до потребителей;
• Фасад — мокрая штукатурка «короед» (цвет на выбор);
• Кровля — металлочерепица 0,45 мм (цвет на выбор);
• Окна, дверь – ПВХ, на террасу, с многозапорным замком, отливы металл;
• Входная дверь — с двойным терморазрывом;
• Отопление — система ТП сэлектрическим котлом ЭВАН/ZOTA (на выбор) в полусухой стяжке 70 мм;
• Терраса/входная группа — до 10 м²;

Формы оплаты

Поэтапная оплата

1 этап: фундамент;
2 этап: коробка;
3 этап: фасад;
4 этап: отделка

Ипотека, эскроу-счет

Банки с которыми мы работаем: СБЕР, Дом РФ, ВТБ, Альфа-банк и др.

Материнский капитал

С возможностью использования для первоначального взноса или погашения ипотеки

Наличными и безналичный расчет

Работаем с юридическими лицами

ПОХОЖИЕ ПРОЕКТЫ

Дом с готовой внешней и внутренней отделкой. А также с коммуникациями “Под ключ”.

1 этаж + мансарда

Размер:

10,5 х 12

Площадь:

100,4 м2

Тип дома:

Кирпич

Цена строительства от:

от  72 430 ₽/м2

1 этаж

Размер:

11,4 х 15,2

Площадь:

112,55 м2

Тип дома:

Кирпич

Цена строительства от:

от  72 430 ₽/м2

2 этажа

Размер:

10,9 х 11,4

Площадь:

152,57 м2

Тип дома:

Кирпич

Цена строительства от:

от  72 430 ₽/м2

БЕСПЛАТНО ПРОКОНСУЛЬТИРУЕМ ПО ВСЕМ ВОПРОСАМ

Оставьте заявку нашим специалистам и мы свяжемся с вами в ближайшее время

Контакты

Доверьте нам строительство, и мы сделаем процесс понятным, а результат безупречным.

Руководитель отдела продаж

Отдел продаж

Имя *
Номер телефона *
Выбрать
Тип постройки
Задайте свой вопрос

© 2010-2026. ООО «3Д АЛЬЯНС», ИНН 270033586220, официальный сайт

Сайт носит исключительно информационный характер и не является публичной офертой, определяемой положениями ГК РФ. Для получения подробной информации о наличии, видах, характеристиках и стоимости домов обращайтесь в офис продаж.

© 2010-2026. ООО «3Д АЛЬЯНС», ИНН 270033586220, официальный сайт

Сайт носит исключительно информационный характер и не является публичной офертой, определяемой положениями ГК РФ. Для получения подробной информации о наличии, видах, характеристиках и стоимости домов обращайтесь в офис продаж.