ул. Кутузова, 1стр.100

+7 (913) 030 44 45

  1. Главная
  2. >
  3. Проекты
  4. >
  5. БриГ

Проект:

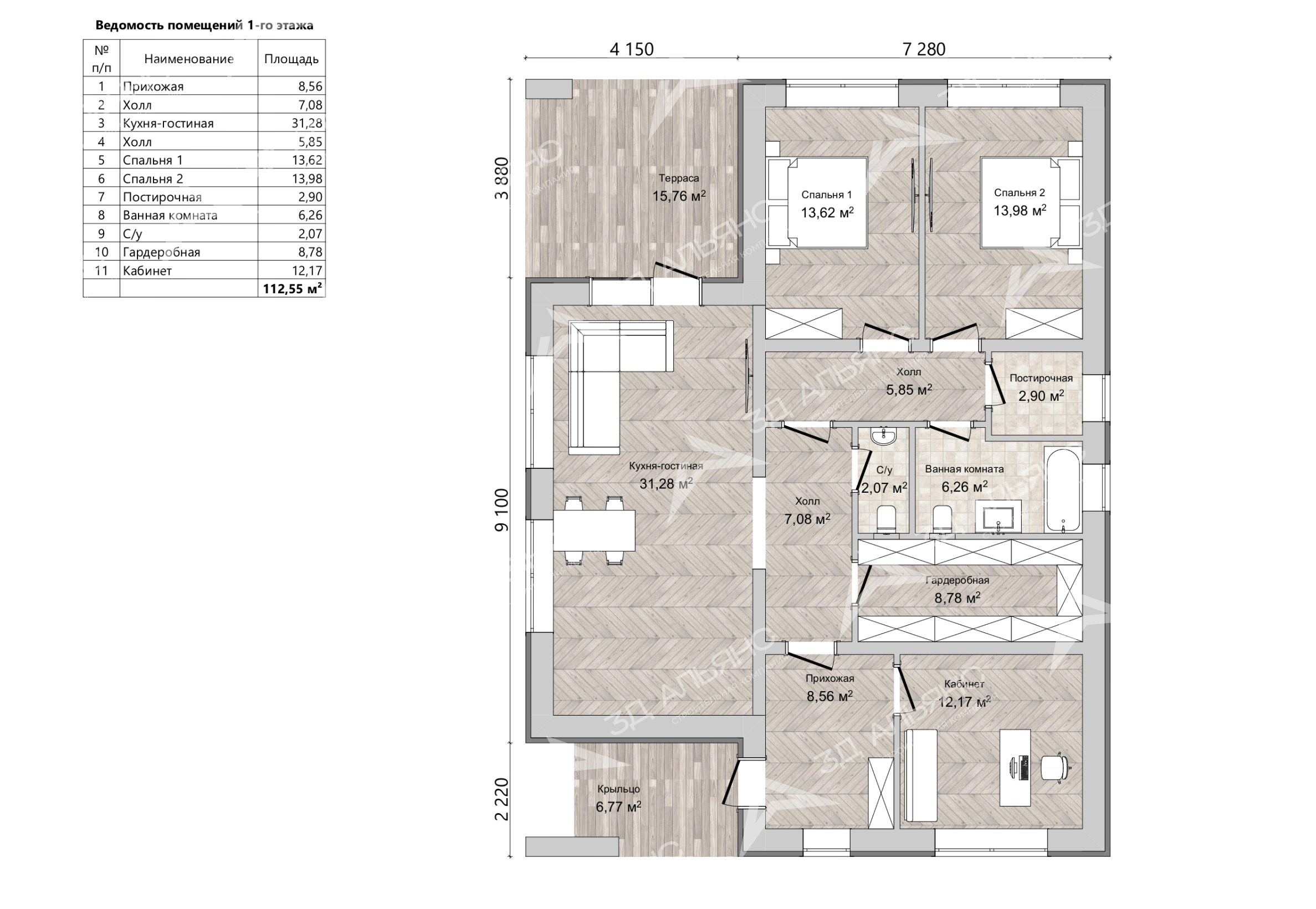
"БриГ"

Информация о проекте:

Размер:

11,4 х 15,2

Площадь:

112,55 м2

Тип дома:

Кирпич

Этаж:

1 этаж

Спален:

2

Санузлов:

2

Цена строительства:

от  72 430 ₽/м2

Описание проекта

Что входит в стоимость

Проект БриГ — современный одноэтажный дом из кирпича, который влюбляет с первого взгляда! Солидные габариты 11,4×15,2 м., при жилой площади 112,55 м² дарят продуманное пространство для жизни. Внутри — 5 комнат, включая 3 уютные спальни и светлую гостиную‑кухню с выходом на широкую террасу. Панорамные окна наполняют интерьер солнцем и открывают зелёные виды — идеальная сцена для семейных завтраков и долгих вечеров! Фасад полностью из кирпича выглядит солидно и тепло. Вечерняя подсветка мягко подчеркивает фактуру кладки, а аккуратный серый цоколь и белые оконные рамы создают элегантный контраст. Вальмовая крыша графитового цвета с широкими свесами защищает крыльцо и дорожки; лаконичные перила и ступени формируют удобный, безопасный вход. Ухоженный сад, гравийные ленты и ровные плиточные тропинки добавляют дому респектабельности и уюта. Чистая геометрия и современный стиль читаются в ровной линии карниза, крупных проемах и минималистичных деталях. С панорамной стороны предусмотрена уютная терраса, переходящая в сад; здесь комфортно пить кофе, слушать дождь под надежными свесами и встречать гостей на защищённом крыльце. Планировка ориентирована на комфорт: приватная спальная зона, простор общественных помещений, продуманные места хранения. Кирпичные стены и энергоэффективное остекление обеспечивают тишину и стабильный микроклимат круглый год.
Проект БриГ — дом, в котором хочется жить активно и спокойно одновременно! Красота, функциональность и качество на одном уровне. Добро пожаловать туда, где каждый день начинается вдохновением!

• Фундамент — ЖБ плита 300мм.Ввод в дом трасс:водоотведения и водоснабжения с греющими кабелями, электроснабжение;
• Септик 5 м³ + трасса водоотведения внешняя и внутренняя до потребителей;
• Фасад — мокрая штукатурка «короед» (цвет на выбор);
• Кровля — металлочерепица 0,45 мм (цвет на выбор);
• Окна, дверь – ПВХ, на террасу, с многозапорным замком, отливы металл;
• Входная дверь — с двойным терморазрывом;
• Отопление — система ТП сэлектрическим котлом ЭВАН/ZOTA (на выбор) в полусухой стяжке 70 мм;
• Терраса/входная группа — до 10 м²;

Формы оплаты

Поэтапная оплата

1 этап: фундамент;
2 этап: коробка;
3 этап: фасад;
4 этап: отделка

Ипотека, эскроу-счет

Банки с которыми мы работаем: СБЕР, Дом РФ, ВТБ, Альфа-банк и др.

Материнский капитал

С возможностью использования для первоначального взноса или погашения ипотеки

Наличными и безналичный расчет

Работаем с юридическими лицами

ПОХОЖИЕ ПРОЕКТЫ

Дом с готовой внешней и внутренней отделкой. А также с коммуникациями “Под ключ”.

1 этаж + мансарда

Размер:

10,5 х 12

Площадь:

100,4 м2

Тип дома:

Кирпич

Цена строительства от:

от  72 430 ₽/м2

1 этаж

Размер:

11,4 х 15,2

Площадь:

112,55 м2

Тип дома:

Кирпич

Цена строительства от:

от  72 430 ₽/м2

2 этажа

Размер:

10,9 х 11,4

Площадь:

152,57 м2

Тип дома:

Кирпич

Цена строительства от:

от  72 430 ₽/м2

БЕСПЛАТНО ПРОКОНСУЛЬТИРУЕМ ПО ВСЕМ ВОПРОСАМ

Оставьте заявку нашим специалистам и мы свяжемся с вами в ближайшее время

Контакты

Доверьте нам строительство, и мы сделаем процесс понятным, а результат безупречным.

Руководитель отдела продаж

Отдел продаж

Имя *
Номер телефона *
Выбрать
Тип постройки
Задайте свой вопрос

© 2010-2026. ООО «3Д АЛЬЯНС», ИНН 270033586220, официальный сайт

Сайт носит исключительно информационный характер и не является публичной офертой, определяемой положениями ГК РФ. Для получения подробной информации о наличии, видах, характеристиках и стоимости домов обращайтесь в офис продаж.

© 2010-2026. ООО «3Д АЛЬЯНС», ИНН 270033586220, официальный сайт

Сайт носит исключительно информационный характер и не является публичной офертой, определяемой положениями ГК РФ. Для получения подробной информации о наличии, видах, характеристиках и стоимости домов обращайтесь в офис продаж.