ул. Кутузова, 1стр.100

+7 (913) 030 44 45

  1. Главная
  2. >
  3. Проекты
  4. >
  5. Селект

Проект:

"Селект"

Информация о проекте:

Размер:

10,9 х 11,4

Площадь:

152,57 м2

Тип дома:

Кирпич

Этаж:

2 этажа

Спален:

5

Санузлов:

2

Цена строительства:

от  72 430 ₽/м2

Описание проекта

Что входит в стоимость

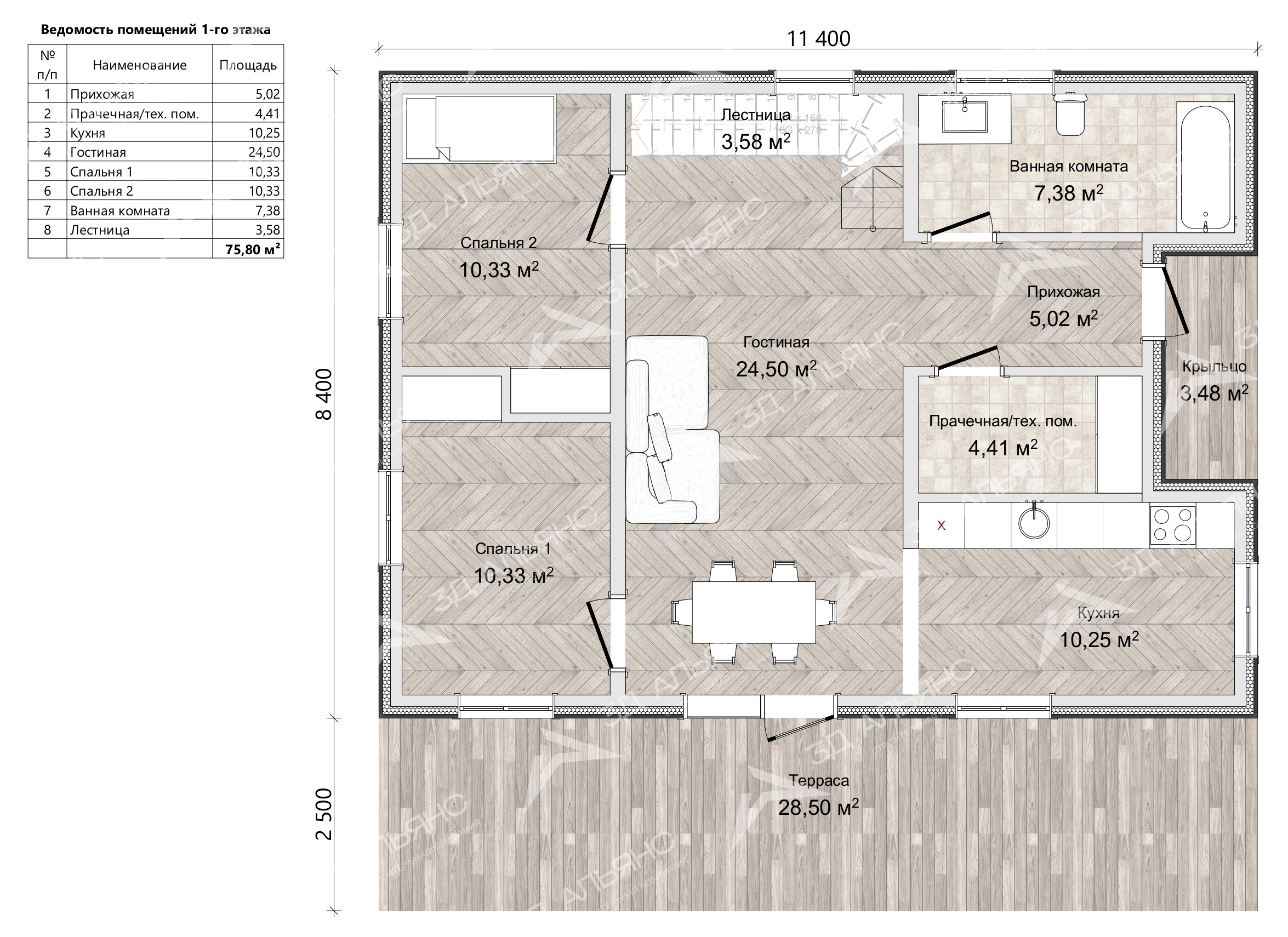
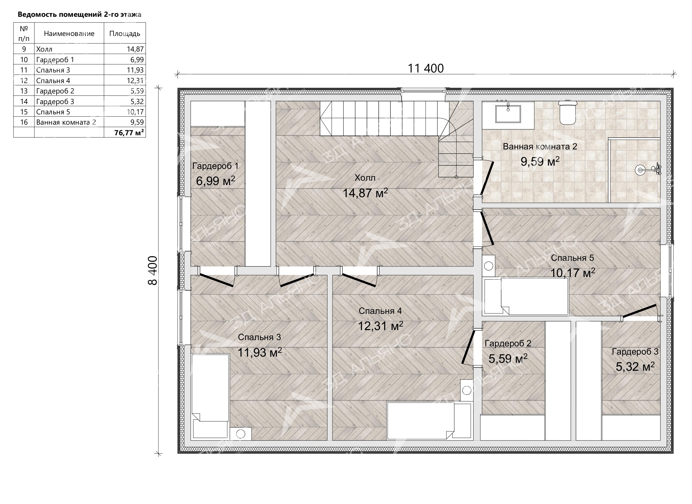
Проект Селект — дом из кирпича, который мгновенно влюбляет! Общие габариты дома 10,9×11,4м скрывают продуманную площадь 152,57 м² и целых 7 комнат. Здесь комфортно разместится большая семья: на первом этаже — 2 спальни и солнечная гостиная с отдельной кухней, на втором — 3 спальни и просторный холл. На каждом уровне — ванные и гардеробные, чтобы утро начиналось легко! Архитектура вдохновляет: лаконичный объем с мансардой под аккуратной двускатной крышей из темной черепицы. Фасады облицованы выразительным камнем; белые наличники и водостоки подчеркивают графичность линий. Подсветка бра мягко вычерчивает фактуру камня по вечерам — уютно! Защищенное крыльцо приветствует гостей, а деревянная терраса вдоль сада зовет на завтрак на свежем воздухе. Большие окна наполняют дом дневным светом, а ухоженный сад с галькой и невысокими кустарниками создает атмосферу курорта. Планировка логична и дружелюбна к быту: из прихожей — в светлую гостиную, где кухня имеет зону и выход на террасу; рядом — две приватные спальни для гостей или старших поколений. На мансарде — три тихие спальни и холл, который можно использовать как библиотеку или игровую.
Проект «Селект» — это 5 спален, 2 этажа и гармония повседневной жизни. Идеальный выбор для тех, кто ценит красоту, тишину и функциональность!

• Фундамент — ЖБ плита 300мм.Ввод в дом трасс:водоотведения и водоснабжения с греющими кабелями, электроснабжение;
• Септик 5 м³ + трасса водоотведения внешняя и внутренняя до потребителей;
• Фасад — мокрая штукатурка «короед» (цвет на выбор);
• Кровля — металлочерепица 0,45 мм (цвет на выбор);
• Окна, дверь – ПВХ, на террасу, с многозапорным замком, отливы металл;
• Входная дверь — с двойным терморазрывом;
• Отопление — система ТП сэлектрическим котлом ЭВАН/ZOTA (на выбор) в полусухой стяжке 70 мм;
• Терраса/входная группа — до 10 м²;

Формы оплаты

Поэтапная оплата

1 этап: фундамент;
2 этап: коробка;
3 этап: фасад;
4 этап: отделка

Ипотека, эскроу-счет

Банки с которыми мы работаем: СБЕР, Дом РФ, ВТБ, Альфа-банк и др.

Материнский капитал

С возможностью использования для первоначального взноса или погашения ипотеки

Наличными и безналичный расчет

Работаем с юридическими лицами

ПОХОЖИЕ ПРОЕКТЫ

Дом с готовой внешней и внутренней отделкой. А также с коммуникациями “Под ключ”.

1 этаж + мансарда

Размер:

10,5 х 12

Площадь:

100,4 м2

Тип дома:

Кирпич

Цена строительства от:

от  72 430 ₽/м2

1 этаж

Размер:

11,4 х 15,2

Площадь:

112,55 м2

Тип дома:

Кирпич

Цена строительства от:

от  72 430 ₽/м2

2 этажа

Размер:

10,9 х 11,4

Площадь:

152,57 м2

Тип дома:

Кирпич

Цена строительства от:

от  72 430 ₽/м2

БЕСПЛАТНО ПРОКОНСУЛЬТИРУЕМ ПО ВСЕМ ВОПРОСАМ

Оставьте заявку нашим специалистам и мы свяжемся с вами в ближайшее время

Контакты

Доверьте нам строительство, и мы сделаем процесс понятным, а результат безупречным.

Руководитель отдела продаж

Отдел продаж

Имя *
Номер телефона *
Выбрать
Тип постройки
Задайте свой вопрос

© 2010-2026. ООО «3Д АЛЬЯНС», ИНН 270033586220, официальный сайт

Сайт носит исключительно информационный характер и не является публичной офертой, определяемой положениями ГК РФ. Для получения подробной информации о наличии, видах, характеристиках и стоимости домов обращайтесь в офис продаж.

© 2010-2026. ООО «3Д АЛЬЯНС», ИНН 270033586220, официальный сайт

Сайт носит исключительно информационный характер и не является публичной офертой, определяемой положениями ГК РФ. Для получения подробной информации о наличии, видах, характеристиках и стоимости домов обращайтесь в офис продаж.