1. Главная страница
  2. >
  3. Проекты
  4. >
  5. БриГ

Проект:

"БриГ"

Информация о проекте:

Размер:

11,4 х 15,2

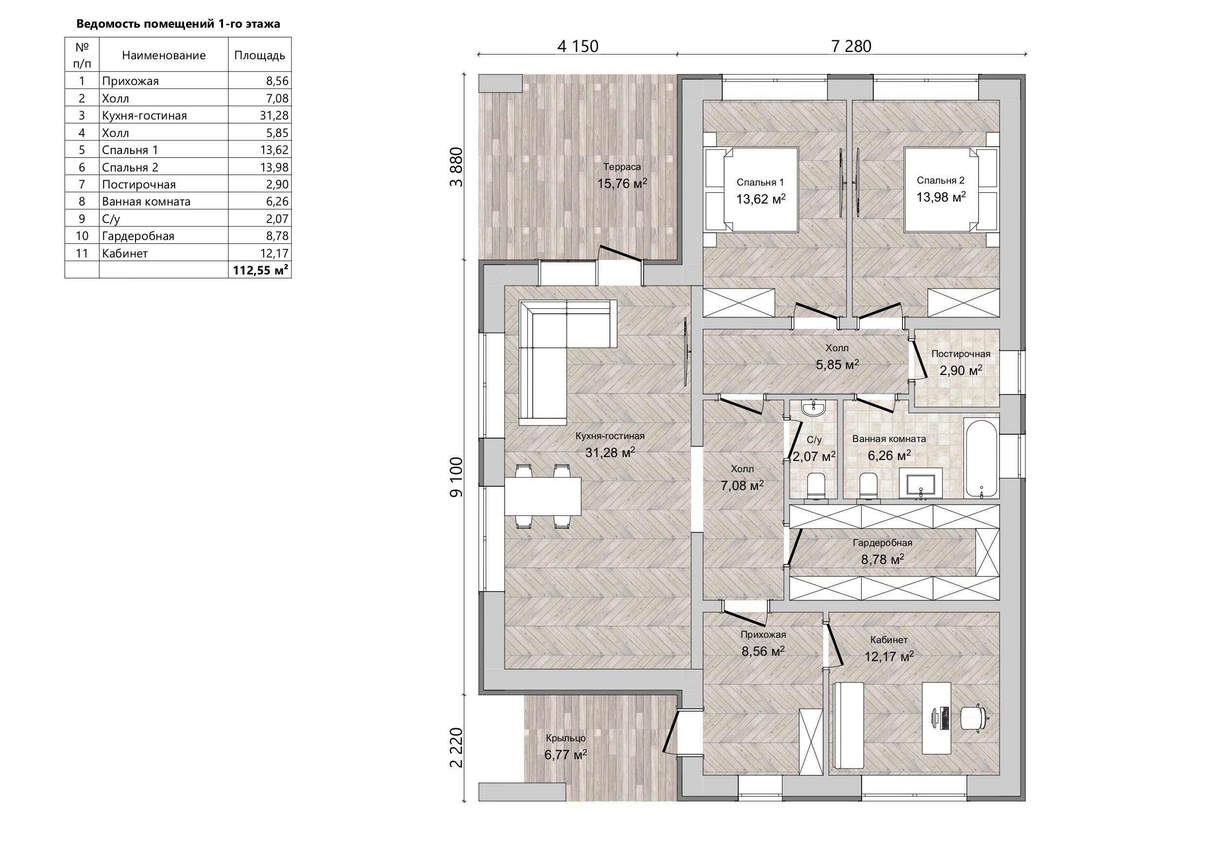
Площадь:

112,55 м2

Тип дома:

Кирпич

Этаж:

1 этаж

Спален:

3

Санузлов:

1

Цена строительства от:

от  72 000 ₽/м2

Цена проекта от:

от  25 000 ₽/м2

Тип постройки
Дома из кирпича
Комплектацию
Black Box (черновая)
Площадь дома
3000

Дополнительно:

Предварительный расчет
0 руб.

Уточнить детали
у менеджера

Имя *
Номер телефона *

«3Д Альянс» реализует строительство вашего дома под ключ
от проекта и фундамента до чистовой отделки.
Единый подряд, высокое качество,
четкие сроки и прозрачность договора.

Данный проект можно реализовать из других строительных материалов, подробности в Вариантах решений

Описание

Варианты решений

Описание проекта:

Проект БриГ — современный одноэтажный дом из кирпича, который влюбляет с первого взгляда! Солидные габариты 11,4×15,2 м., при жилой площади 112,55 м² дарят продуманное пространство для жизни. Внутри — 5 комнат, включая 3 уютные спальни и светлую гостиную‑кухню с выходом на широкую террасу. Панорамные окна наполняют интерьер солнцем и открывают зелёные виды — идеальная сцена для семейных завтраков и долгих вечеров! Фасад полностью из кирпича выглядит солидно и тепло. Вечерняя подсветка мягко подчеркивает фактуру кладки, а аккуратный серый цоколь и белые оконные рамы создают элегантный контраст. Вальмовая крыша графитового цвета с широкими свесами защищает крыльцо и дорожки; лаконичные перила и ступени формируют удобный, безопасный вход. Ухоженный сад, гравийные ленты и ровные плиточные тропинки добавляют дому респектабельности и уюта. Чистая геометрия и современный стиль читаются в ровной линии карниза, крупных проемах и минималистичных деталях. С панорамной стороны предусмотрена уютная терраса, переходящая в сад; здесь комфортно пить кофе, слушать дождь под надежными свесами и встречать гостей на защищённом крыльце. Планировка ориентирована на комфорт: приватная спальная зона, простор общественных помещений, продуманные места хранения. Кирпичные стены и энергоэффективное остекление обеспечивают тишину и стабильный микроклимат круглый год. Проект БриГ — дом, в котором хочется жить активно и спокойно одновременно! Красота, функциональность и качество на одном уровне. Добро пожаловать туда, где каждый день начинается вдохновением!

Планировка:

Описание проекта:

ВАРИАНТЫ СТРОИТЕЛЬСТВАСТОИМОСТЬ ПРОЕКТАСТОИМОСТЬ СТРОИТЕЛЬСТВА
Каркасный дом
от 25 000 ₽от 72 000 ₽
Дома из кирпичаот 25 000 ₽
от 72 000 ₽
Дома из брусаот 25 000 ₽
от 72 000 ₽
Дома из газоблокаот 25 000 ₽
от 72 000 ₽
Теплоблок
от 25 000 ₽
от 72 000 ₽

Формы оплаты

Поэтапная оплата

1 этап: фундамент;
2 этап: коробка;
3 этап: фасад;
4 этап: отделка

Ипотека, эскроу-счет

Банки с которыми мы работаем: СБЕР, Дом РФ, ВТБ, Альфа-банк и др.

Материнский капитал

1. Возможно использовать для первоначального взноса
2. Возможно использовать для погашения ипотеки

Наличными и безналичный расчет

Работа с юридическими лицами

ПОХОЖИЕ ПРОЕКТЫ

Дом с готовой внешней и внутренней отделкой. А также с коммуникациями “Под ключ”.

1 этаж

Размер:

8 х 14

Площадь:

78,17 м2

Тип дома:

Каркасный

Цена строительства от:

от  72 000 ₽/м2

1 этаж

Размер:

8 х 14

Площадь:

78, м27

Тип дома:

Каркасный

Цена строительства от:

от  87 000 ₽/м2

1 + мансарда

Размер:

12,5 х 12

Площадь:

103,5 м2

Тип дома:

Каркасный

Цена строительства от:

от  72 000 ₽/м2

1 этаж

Размер:

9,8 х 12,3

Площадь:

80,75 м2

Тип дома:

Каркасный

Цена строительства от:

от  72 000 ₽/м2

И МЫ СВЯЖЕМСЯ С ВАМИ

И МЫ СВЯЖЕМСЯ
С ВАМИ

Оставьте заявку нашим специалистам и мы свяжемся с вами в ближайшее время

© 2010-2026. ООО «3Д АЛЬЯНС», ИНН 270033586220, официальный сайт

Сайт носит исключительно информационный характер и не является публичной офертой, определяемой положениями ГК РФ. Для получения подробной информации о наличии, видах, характеристиках и стоимости домов обращайтесь в офис продаж.

© 2010-2026. ООО «3Д АЛЬЯНС», ИНН 270033586220, официальный сайт

Сайт носит исключительно информационный характер и не является публичной офертой, определяемой положениями ГК РФ. Для получения подробной информации о наличии, видах, характеристиках и стоимости домов обращайтесь в офис продаж.