ул. Кутузова, 1стр.100

+7 (913) 030 44 45

  1. Главная
  2. >
  3. Проекты
  4. >
  5. Мариот

Проект:

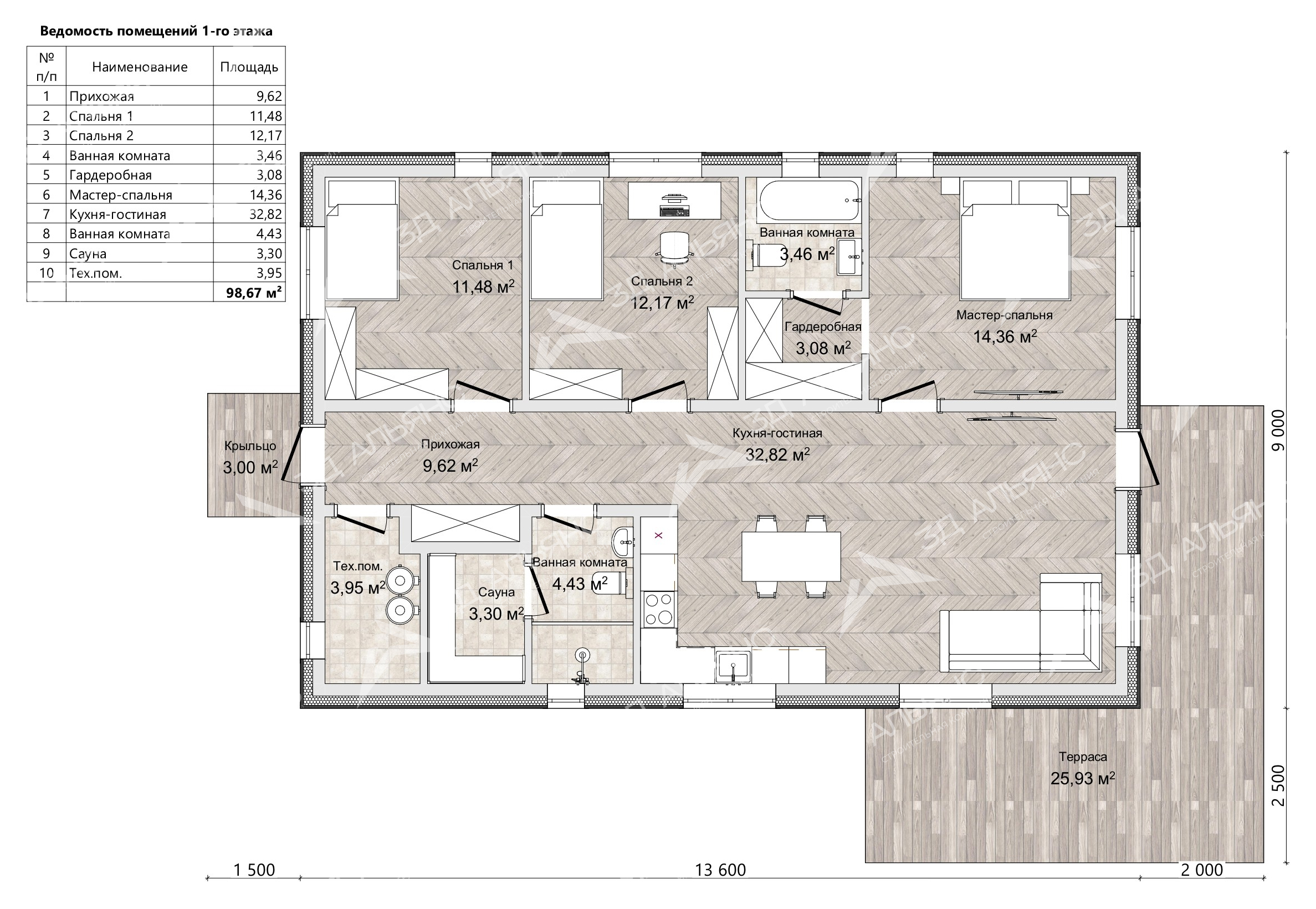
"Мариот"

Информация о проекте:

Размер:

9 х 13,6

Площадь:

98,67 м2

Тип дома:

Кирпич

Этаж:

1 этаж

Спален:

3

Санузлов:

2

Цена строительства:

от  72 430 ₽/м2

Описание проекта

Что входит в стоимость

Проект «Мариот» — элегантный одноэтажный дом классического стиля, созданный для радостной повседневной жизни. Кирпичные стены и светлый мокрый фасад придают дому солидность и чистоту линий, а аккуратные серые обрамления окон подчеркивают гармоничные пропорции корпуса 9×13,6 м. Четырёхскатная крыша с тёмной черепицей выглядит респектабельно и надежно, цоколь выполнен под камень — красиво и практично. Планировка площадью 98,67 м² включает 4 комнаты: просторную гостиную-кухню и три уютные спальни. Панорамные окна в зоне гостиной наполняют дом светом и открывают вид на природу, создавая ощущение простора и спокойствия. Из гостиной — прямой выход на широкую террасу: идеальное место для завтраков на свежем воздухе и тёплых семейных вечеров. Уютное крыльцо встречает мягкими ступенями и задаёт гостеприимный тон. На участке выделяется ухоженная гравийная дорожка, хвойники и камни — ландшафт подчеркивает классическую сдержанность дома. Кирпичная основа обеспечивает тепло и тишину круглый год, а мокрый фасад легко держит форму и цвет.
Проект «Мариот» сочетает красоту и практичность: один этаж — максимум удобства без лишних перепадов, продуманные проёмы — больше естественного света. Это тот дом, куда хочется возвращаться, чтобы ловить счастливые мгновения каждый день

• Фундамент — ЖБ плита 300мм.Ввод в дом трасс:водоотведения и водоснабжения с греющими кабелями, электроснабжение;
• Септик 5 м³ + трасса водоотведения внешняя и внутренняя до потребителей;
• Фасад — мокрая штукатурка «короед» (цвет на выбор);
• Кровля — металлочерепица 0,45 мм (цвет на выбор);
• Окна, дверь – ПВХ, на террасу, с многозапорным замком, отливы металл;
• Входная дверь — с двойным терморазрывом;
• Отопление — система ТП сэлектрическим котлом ЭВАН/ZOTA (на выбор) в полусухой стяжке 70 мм;
• Терраса/входная группа — до 10 м²;

Формы оплаты

Поэтапная оплата

1 этап: фундамент;
2 этап: коробка;
3 этап: фасад;
4 этап: отделка

Ипотека, эскроу-счет

Банки с которыми мы работаем: СБЕР, Дом РФ, ВТБ, Альфа-банк и др.

Материнский капитал

С возможностью использования для первоначального взноса или погашения ипотеки

Наличными и безналичный расчет

Работаем с юридическими лицами

ПОХОЖИЕ ПРОЕКТЫ

Дом с готовой внешней и внутренней отделкой. А также с коммуникациями “Под ключ”.

1 этаж + мансарда

Размер:

10,5 х 12

Площадь:

100,4 м2

Тип дома:

Кирпич

Цена строительства от:

от  72 430 ₽/м2

1 этаж

Размер:

11,4 х 15,2

Площадь:

112,55 м2

Тип дома:

Кирпич

Цена строительства от:

от  72 430 ₽/м2

2 этажа

Размер:

10,9 х 11,4

Площадь:

152,57 м2

Тип дома:

Кирпич

Цена строительства от:

от  72 430 ₽/м2

БЕСПЛАТНО ПРОКОНСУЛЬТИРУЕМ ПО ВСЕМ ВОПРОСАМ

Оставьте заявку нашим специалистам и мы свяжемся с вами в ближайшее время

Контакты

Доверьте нам строительство, и мы сделаем процесс понятным, а результат безупречным.

Руководитель отдела продаж

Отдел продаж

Имя *
Номер телефона *
Выбрать
Тип постройки
Задайте свой вопрос

© 2010-2026. ООО «3Д АЛЬЯНС», ИНН 270033586220, официальный сайт

Сайт носит исключительно информационный характер и не является публичной офертой, определяемой положениями ГК РФ. Для получения подробной информации о наличии, видах, характеристиках и стоимости домов обращайтесь в офис продаж.

© 2010-2026. ООО «3Д АЛЬЯНС», ИНН 270033586220, официальный сайт

Сайт носит исключительно информационный характер и не является публичной офертой, определяемой положениями ГК РФ. Для получения подробной информации о наличии, видах, характеристиках и стоимости домов обращайтесь в офис продаж.