1. Главная страница
  2. >
  3. Проекты
  4. >
  5. Мариот

Проект:

"Мариот"

Информация о проекте:

Размер:

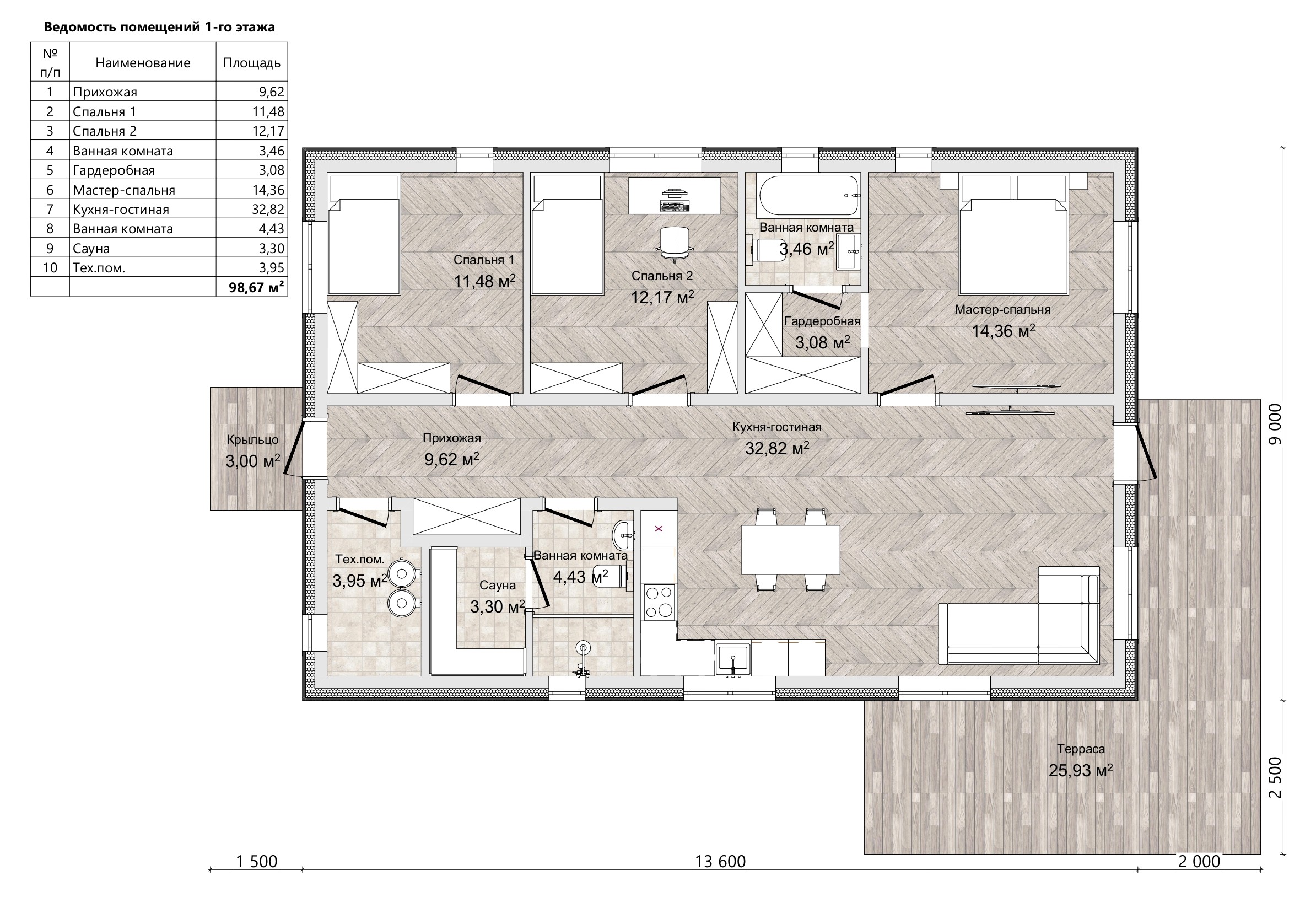
9 х 13,6

Площадь:

98,67 м2

Тип дома:

Кирпич

Этаж:

1 этаж

Спален:

3

Санузлов:

1

Цена строительства от:

от  72 000 ₽/м2

Цена проекта от:

от  25 000 ₽/м2

Тип постройки
Дома из кирпича
Комплектацию
Black Box (черновая)
Площадь дома
3000

Дополнительно:

Предварительный расчет
0 руб.

Уточнить детали
у менеджера

Имя *
Номер телефона *

«3Д Альянс» реализует строительство вашего дома под ключ
от проекта и фундамента до чистовой отделки.
Единый подряд, высокое качество,
четкие сроки и прозрачность договора.

Данный проект можно реализовать из других строительных материалов, подробности в Вариантах решений

Описание

Варианты решений

Описание проекта:

Проект «Мариот» — элегантный одноэтажный дом классического стиля, созданный для радостной повседневной жизни. Кирпичные стены и светлый мокрый фасад придают дому солидность и чистоту линий, а аккуратные серые обрамления окон подчеркивают гармоничные пропорции корпуса 9×13,6 м. Четырёхскатная крыша с тёмной черепицей выглядит респектабельно и надежно, цоколь выполнен под камень — красиво и практично. Планировка площадью 98,67 м² включает 4 комнаты: просторную гостиную-кухню и три уютные спальни. Панорамные окна в зоне гостиной наполняют дом светом и открывают вид на природу, создавая ощущение простора и спокойствия. Из гостиной — прямой выход на широкую террасу: идеальное место для завтраков на свежем воздухе и тёплых семейных вечеров. Уютное крыльцо встречает мягкими ступенями и задаёт гостеприимный тон. На участке выделяется ухоженная гравийная дорожка, хвойники и камни — ландшафт подчеркивает классическую сдержанность дома. Кирпичная основа обеспечивает тепло и тишину круглый год, а мокрый фасад легко держит форму и цвет. Проект «Мариот» сочетает красоту и практичность: один этаж — максимум удобства без лишних перепадов, продуманные проёмы — больше естественного света. Это тот дом, куда хочется возвращаться, чтобы ловить счастливые мгновения каждый день.

Планировка:

Описание проекта:

ВАРИАНТЫ СТРОИТЕЛЬСТВАСТОИМОСТЬ ПРОЕКТАСТОИМОСТЬ СТРОИТЕЛЬСТВА
Каркасный дом
от 25 000 ₽от 72 000 ₽
Дома из кирпичаот 25 000 ₽
от 72 000 ₽
Дома из брусаот 25 000 ₽
от 72 000 ₽
Дома из газоблокаот 25 000 ₽
от 72 000 ₽
Теплоблок
от 25 000 ₽
от 72 000 ₽

Формы оплаты

Поэтапная оплата

1 этап: фундамент;
2 этап: коробка;
3 этап: фасад;
4 этап: отделка

Ипотека, эскроу-счет

Банки с которыми мы работаем: СБЕР, Дом РФ, ВТБ, Альфа-банк и др.

Материнский капитал

1. Возможно использовать для первоначального взноса
2. Возможно использовать для погашения ипотеки

Наличными и безналичный расчет

Работа с юридическими лицами

ПОХОЖИЕ ПРОЕКТЫ

Дом с готовой внешней и внутренней отделкой. А также с коммуникациями “Под ключ”.

1 этаж

Размер:

8 х 14

Площадь:

78,17 м2

Тип дома:

Каркасный

Цена строительства от:

от  72 000 ₽/м2

1 этаж

Размер:

8 х 14

Площадь:

78, м27

Тип дома:

Каркасный

Цена строительства от:

от  87 000 ₽/м2

1 + мансарда

Размер:

12,5 х 12

Площадь:

103,5 м2

Тип дома:

Каркасный

Цена строительства от:

от  72 000 ₽/м2

1 этаж

Размер:

9,8 х 12,3

Площадь:

80,75 м2

Тип дома:

Каркасный

Цена строительства от:

от  72 000 ₽/м2

И МЫ СВЯЖЕМСЯ С ВАМИ

И МЫ СВЯЖЕМСЯ
С ВАМИ

Оставьте заявку нашим специалистам и мы свяжемся с вами в ближайшее время

© 2010-2026. ООО «3Д АЛЬЯНС», ИНН 270033586220, официальный сайт

Сайт носит исключительно информационный характер и не является публичной офертой, определяемой положениями ГК РФ. Для получения подробной информации о наличии, видах, характеристиках и стоимости домов обращайтесь в офис продаж.

© 2010-2026. ООО «3Д АЛЬЯНС», ИНН 270033586220, официальный сайт

Сайт носит исключительно информационный характер и не является публичной офертой, определяемой положениями ГК РФ. Для получения подробной информации о наличии, видах, характеристиках и стоимости домов обращайтесь в офис продаж.